Centraal gelegen maisonnette woningen in Dolores
Mykonos Apartments is een project van nieuwbouwmaisonnettes met een mediterraan ontwerp op een zeer goede locatie in Dolores, een typisch Spaans dorp ten zuiden van Alicante.
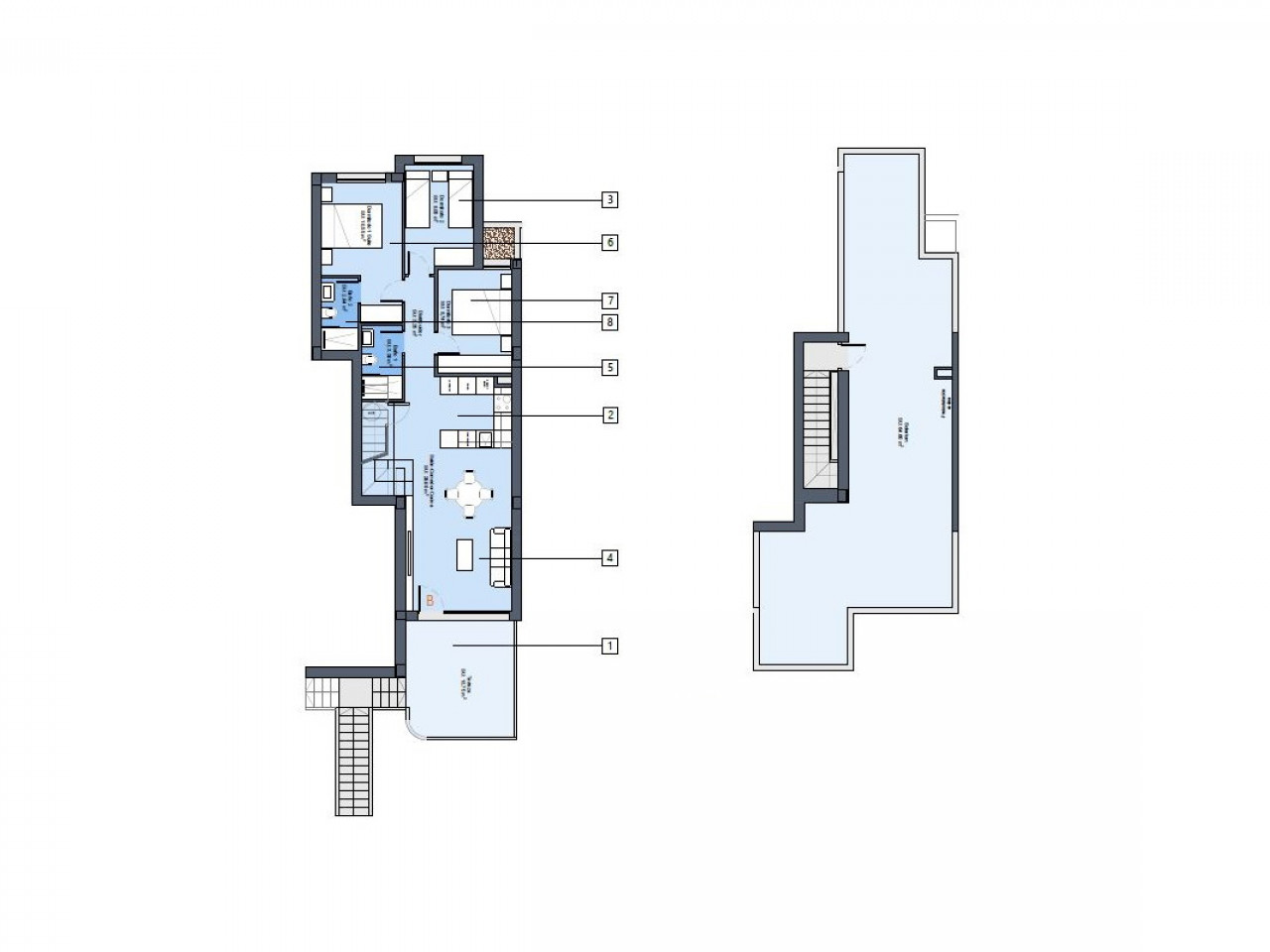
Hier kun je kiezen uit twee typen maisonnettes, begane grond of bovenste verdieping, allemaal met drie slaapkamers en twee badkamers gebouwd met hoge standaarden en zeer goede kwaliteiten.
De maisonnettes bieden een open indeling tussen de woonkamer en de keuken, drie ruime slaapkamers en twee badkamers, waarvan één en-suite. De maisonnettes op de begane grond hebben een ruime tuin, terwijl de maisonnettes op de bovenste verdieping een groot dakterras hebben.
De maisonnettes maken deel uit van een omheinde gemeenschap met mooie groene zones en een gemeenschappelijk zwembad. Alle woningen hebben een parkeerplaats en sommige woningen hebben ook een berging.
Dolores ligt in het hart van de Vega Baja, op slechts 10 minuten van de zandstranden van La Marina en Guardamar. Dolores biedt veel lokale voorzieningen, waaronder bars, restaurants, supermarkten, een medisch centrum, het gemeentehuis, scholen en sportfaciliteiten, met een dagelijkse/wekelijkse markt in het centrum. Dolores wordt gekarakteriseerd als een rustig maar zeer gezellig en veilig stadje, een ideale plek voor mensen om het hele jaar door te wonen. De uitstekende toegang tot de AP-7 zorgt voor goede verbindingen met de rest van de Costa Blanca, met Dolores op slechts 15 minuten van de steden Elche en Torrevieja, 30 minuten van de stad Alicante en slechts 25 minuten van de luchthaven van Alicante.










