Wat een bijzonder uitzicht treft u hier
Amara Maris Beach & Spa is een nieuw luxe woonproject gelegen aan de kust van de Middellandse Zee in het prachtige resort La Manga del Mar Menor, aan de Costa Cálida.
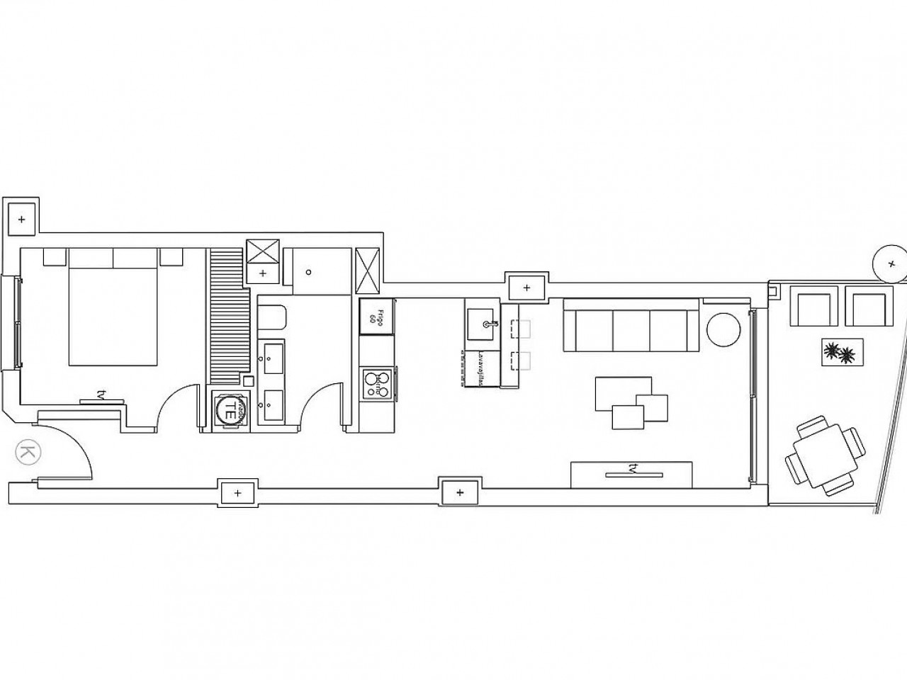
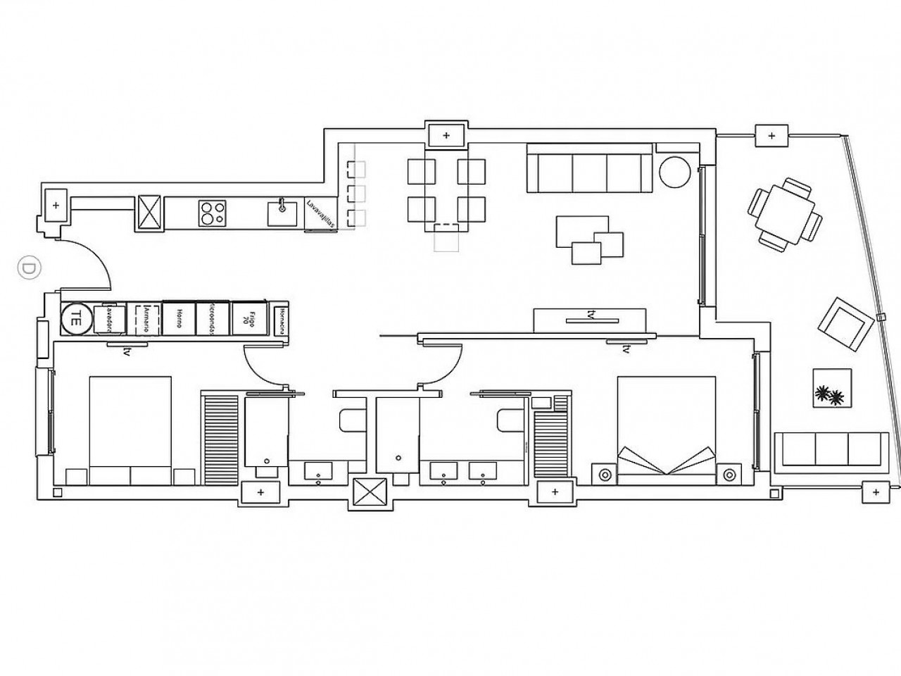
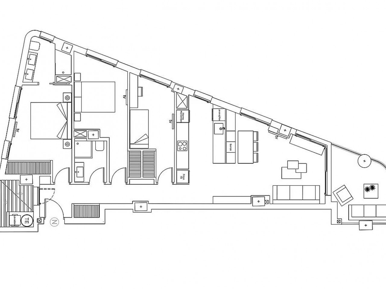
De ontwikkeling bestaat uit twee blokken van 9 verdiepingen met 1 tot 3 slaapkamers, appartementen met een ruime wooneetkamer met open keuken en openslaande deuren naar het terras met uitzicht op zee in alle woningen, aangelegde gemeenschappelijke ruimtes, indrukwekkend zwembad, fitnessruimte en sauna.
La Manga, al tientallen jaren een bekende toeristische hotspot, is een mekka voor liefhebbers van witte zandstranden, kristalhelder water en drukte. Alleen hier kun je ervoor kiezen om in twee zeeën te zwemmen, of de zon zien ondergaan en opkomen boven een van deze wateren.










