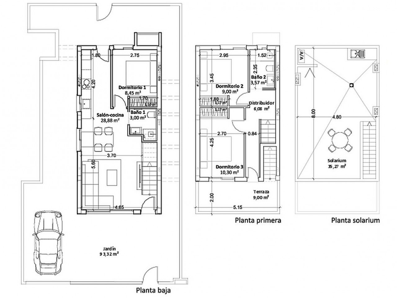
2 slaapkamer Maisonette in Torre de la Horadada grootte 76m2

€375.000

Een mooi gevarieerd kleinschalig project, iets voor u? Nieuwbouwresort met maisonnettes met drie slaapkamers en twee badkamers en ook twee vrijstaande herenhuizen en een vrijstaande villa, gelegen op een paar meter van de mooie stranden in Torre de la Horadada.

Hier kun je kiezen tussen maisonnettes op de begane grond met grote tuinen of maisonnettes op de bovenste verdieping met ruime dakterrassen en een balkon, of herenhuizen met tuin en dakterras met kitchenette, allemaal gebouwd met hoge normen en zeer goede kwaliteiten. Alle woningen hebben een open indeling tussen de woonkamer en de keuken, drie ruime slaapkamers met inbouwkasten en twee badkamers, waarvan één en-suite. Alle woningen hebben een parkeerplaats.

In het midden van het complex vind je een mooie gemeenschappelijke ruimte met zwembad, verwarmde jacuzzi, fitnessruimte en sauna. Het complex ligt op maar een klein stukje lopen van de prachtige jachthaven van Torre de la Horadada.

Vanaf de woningen loop je in ongeveer 10 minuten naar fantastische zandstranden en in de omgeving zijn verschillende restaurants en gezellige cafés. In de omgeving zijn er verschillende coffeeshops, winkels en sportfaciliteiten. Hier heb je ook twee restaurantpleinen op loopafstand en de gezellige strandboulevard. De prachtige stranden van Torre de la Horadada liggen op een paar minuten lopen van het project. In de buurt heb je de mogelijkheid om te paddelen, tennissen en golfen. Als je verschillende watersporten wilt proberen, is die mogelijkheid er ook. Voor wie van wandelen in de natuur houdt, zijn er prachtige wandelroutes in de buurt.
Pilar de la Horadada heeft alles wat je nodig zou kunnen hebben, zoals winkels, banken, apotheken, restaurants en scholen. Als je wilt zwemmen in de kleine Mar Menor Zee, is het ongeveer 7 minuten rijden naar San Pedro del Pinatar. Het grote winkelcentrum La Zenia Boulevard ligt op ongeveer 10 minuten rijden van de residentie en de luchthaven ligt op ongeveer 45 minuten rijden.

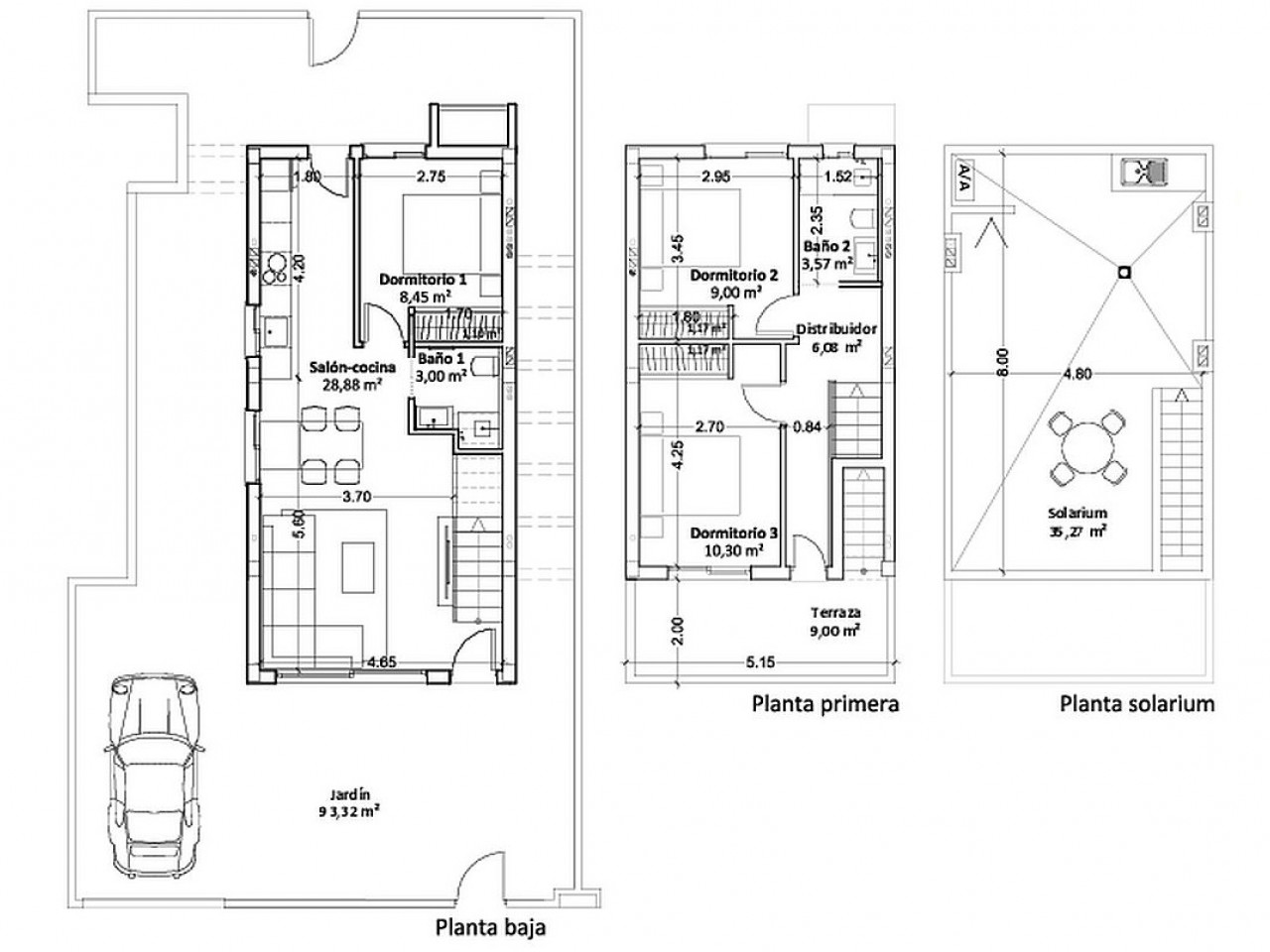
2 slaapkamer Maisonette in Torre de la Horadada grootte 76m2

Een mooi gevarieerd kleinschalig project, iets voor u? Nieuwbouwresort met maisonnettes met drie slaapkamers en twee badkamers en ook twee vrijstaande herenhuizen en een vrijstaande villa, gelegen op een paar meter van de mooie stranden in Torre de la Horadada. Hier kun je kiezen tussen maisonnettes op de begane grond met grote tuinen of maisonnettes op de bovenste verdieping met ruime dakterrassen en een balkon, of herenhuizen met tuin en dakterras met kitchenette, allemaal gebouwd met hoge normen en zeer goede kwaliteiten. Alle woningen hebben een open indeling tussen de woonkamer en de keuken, drie ruime slaapkamers met inbouwkasten en twee badkamers, waarvan één en-suite. Alle woningen hebben een parkeerplaats. In het midden van het complex vind je een mooie gemeenschappelijke ruimte met zwembad, verwarmde jacuzzi, fitnessruimte en sauna. Het complex ligt op maar een klein stukje lopen van de prachtige jachthaven van Torre de la Horadada. Vanaf de woningen loop je in ongeveer 10 minuten naar fantastische zandstranden en in de omgeving zijn verschillende restaurants en gezellige cafés. In de omgeving zijn er verschillende coffeeshops, winkels en sportfaciliteiten. Hier heb je ook twee restaurantpleinen op loopafstand en de gezellige strandboulevard. De prachtige stranden van Torre de la Horadada liggen op een paar minuten lopen van het project. In de buurt heb je de mogelijkheid om te paddelen, tennissen en golfen. Als je verschillende watersporten wilt proberen, is die mogelijkheid er ook. Voor wie van wandelen in de natuur houdt, zijn er prachtige wandelroutes in de buurt. Pilar de la Horadada heeft alles wat je nodig zou kunnen hebben, zoals winkels, banken, apotheken, restaurants en scholen. Als je wilt zwemmen in de kleine Mar Menor Zee, is het ongeveer 7 minuten rijden naar San Pedro del Pinatar. Het grote winkelcentrum La Zenia Boulevard ligt op ongeveer 10 minuten rijden van de residentie en de luchthaven ligt op ongeveer 45 minuten rijden.

€375000

heeft u interesse in deze woning?

Neem direct contact met ons op! Vul het onderstaande formulier in en wij zijn u graag van dienst. Ook kunt u ons telefonisch bereiken via (0031)165 599993

Ontdek meer van ons aanbod

€1650000

Benidorm, wie houdt er niet van? Benidorm Tower is de perfecte plek om te genieten van een echte mediterrane levensstijl, op…

Grootte: 142 M2

3

3

€350000

Pilar wordt steeds meer populair, gaat u er deel van uitmaken? Deze prachtige en moderne maisonnettes en stadswoningen liggen naast de…

Grootte: 105 M2

3

2

€399000

Een ideale ligging voor de golf- en natuurliefhebber Bonalba Green is een uitzonderlijk nieuw wooncomplex met appartementen en villa’s in de…

Grootte: 75 M2

2

2

Bezoek onze evenementen

Bezoek ons op diverse evenementen, zoals tentoonstellingen, seminars en beurzen.

Kom langs en ontdek hoe wij u kunnen helpen uw droomwoning in Spanje te vinden!