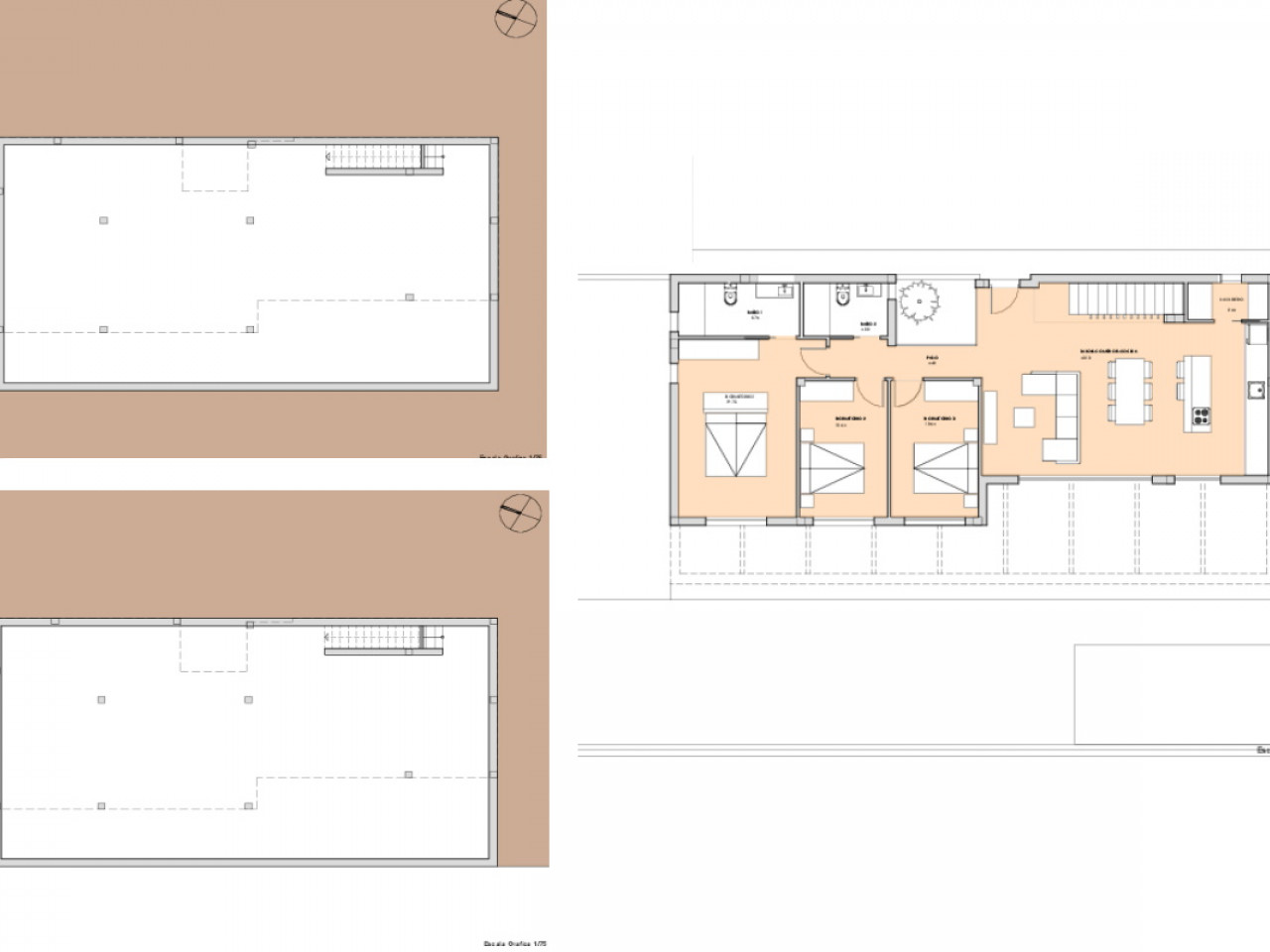
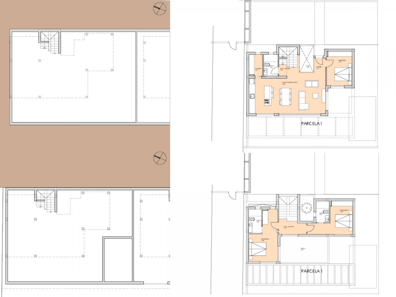
3 slaapkamer Villa in Benidorm grootte 473m2

€725.000

Groot, groter, grootst…. Nieuwbouwproject van 10 moderne designvilla’s, in een natuurlijke omgeving met uitzicht op de zee en de bergen, vlakbij de golfbaan Puig Campana en op korte afstand van de steden Finestrat en Benidorm.
Het project omvat twee typen villa’s, met 1 of 2 verdiepingen, 3 tweepersoonsslaapkamers, 2 of 3 complete badkamers, woon-eetkamer met geïntegreerde keuken, wasruimte, groot terras en tuin, privézwembad en strandgedeelte, parkeergelegenheid buiten, 1 of 2 multifunctionele kelders en in sommige modellen een afgesloten ondergrondse garage.
Villas Puig Campana ligt in een bevoorrechte omgeving aan de Costa Blanca, in een verhoogd gebied aan de voet van de bergen, omgeven door natuur, met een uitstekend uitzicht op de zee en de omgeving. Het resort is over de weg zeer goed verbonden met de nabijgelegen stad Finestrat, op 10 minuten rijden van winkelcentra, de snelweg A7, de stranden en de nabijgelegen steden Benidorm en Villajoyosa, en op 30 minuten van de stad Alicante en de internationale luchthaven.

3 slaapkamer Villa in Benidorm grootte 473m2

Groot, groter, grootst…. Nieuwbouwproject van 10 moderne designvilla’s, in een natuurlijke omgeving met uitzicht op de zee en de bergen, vlakbij de golfbaan Puig Campana en op korte afstand van de steden Finestrat en Benidorm. Het project omvat twee typen villa’s, met 1 of 2 verdiepingen, 3 tweepersoonsslaapkamers, 2 of 3 complete badkamers, woon-eetkamer met geïntegreerde keuken, wasruimte, groot terras en tuin, privézwembad en strandgedeelte, parkeergelegenheid buiten, 1 of 2 multifunctionele kelders en in sommige modellen een afgesloten ondergrondse garage. Villas Puig Campana ligt in een bevoorrechte omgeving aan de Costa Blanca, in een verhoogd gebied aan de voet van de bergen, omgeven door natuur, met een uitstekend uitzicht op de zee en de omgeving. Het resort is over de weg zeer goed verbonden met de nabijgelegen stad Finestrat, op 10 minuten rijden van winkelcentra, de snelweg A7, de stranden en de nabijgelegen steden Benidorm en Villajoyosa, en op 30 minuten van de stad Alicante en de internationale luchthaven.

€725000

heeft u interesse in deze woning?

Neem direct contact met ons op! Vul het onderstaande formulier in en wij zijn u graag van dienst. Ook kunt u ons telefonisch bereiken via (0031)165 599993

Ontdek meer van ons aanbod

€293000

De vorige fases zijn zo snel verkocht, wees er op tijd bij! Thiar Village IV is een gloednieuw project bestaande uit…

Grootte: 60 M2

2

2

€659000

Een heel bijzondere villa te Los Alcazares L.A. Beach is een ontwikkeling van exclusieve vrijstaande villa’s aan zee, elk met een…

Grootte: 118 M2

3

3

€173100

Een mooi verblijf, maar zeker ook een goede investering The Reference is een modern woongebouw met verschillende soorten woningen, van studio’s…

Grootte: 41 M2

1

1

Bezoek onze evenementen

Bezoek ons op diverse evenementen, zoals tentoonstellingen, seminars en beurzen.

Kom langs en ontdek hoe wij u kunnen helpen uw droomwoning in Spanje te vinden!