Een mooie mix van klassiek en modern
Villa Olivia, vrijstaande villa met een bijzonder ontwerp gekenmerkt door mediterrane stijl fusie met moderne accenten in zijn architectuur.
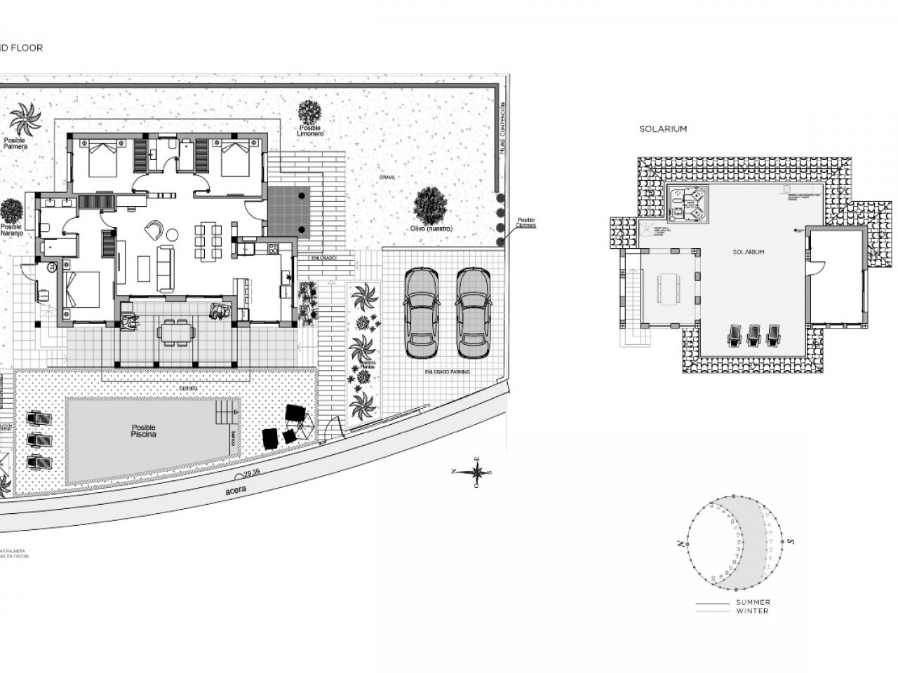
Deze prachtige villa heeft 3 slaapkamers en 2 badkamers, een ruime woonkamer en buitenruimtes zoals een solarium en een tuin met privé zwembad.
De villa is gelegen in Doña Pepa – Ciudad Quesada, met allerlei diensten naast de deur en de nabijheid van de Guardamar stranden. En niet te vergeten geenvoudig vervoer naar luchthavens naar steden zoals Alicante of Torrevieja.







