Gelegen nabij een van de mooiste stranden aan de Costa Blanca
Vista Cala 52 is een prachtig nieuw woonproject met 52 hoogwaardige appartementen op 1 km van Cala de Finestrat, gelegen tussen Villajoyosa, Finestrat en de bruisende stad Benidorm.
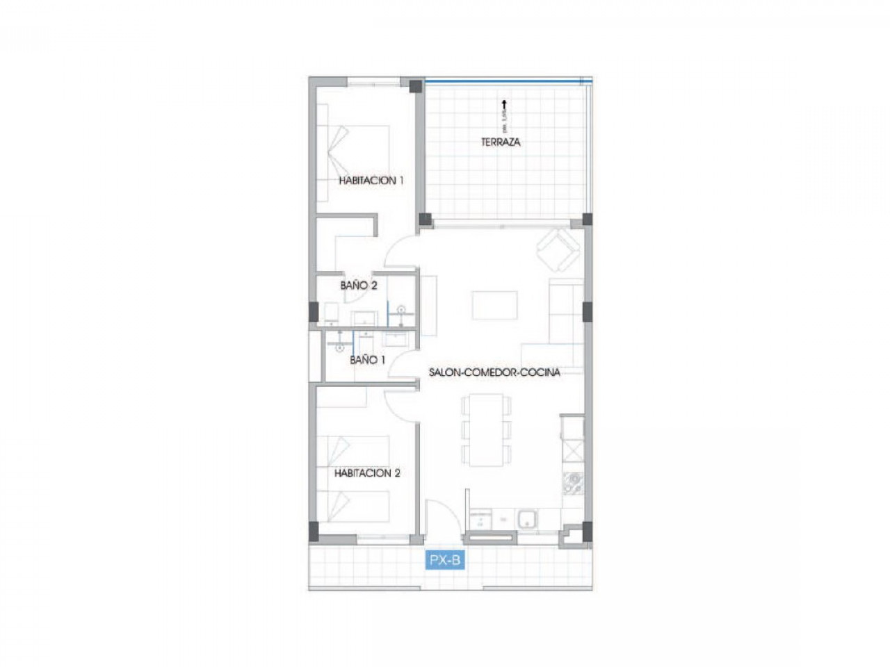
Alle appartementen hebben 2 slaapkamers en 2 badkamers, een ruim interieur en een doordacht ontwerp om de natuurlijke lichtinval te verbeteren en de leefruimte te maximaliseren. De appartementen op de begane grond hebben een privétuin, de appartementen op de middelste verdieping hebben grote terrassen met uitzicht op zee vanaf de 4e verdieping en de appartementen op de bovenste verdieping hebben indrukwekkende terrassen van 46 m² met uitzicht op zee.
Bewoners genieten van eersteklas voorzieningen, waaronder twee grote gemeenschappelijke zwembaden, groen aangelegde gebieden, fitnessapparatuur en privéparkeergelegenheid.
Ontworpen om comfort, stijl en functionaliteit te combineren, bieden deze woningen een onovertroffen locatie op slechts een korte wandeling van zowel het strand als de winkelcentra, waardoor ze ideaal zijn om het hele jaar door te wonen, op vakantie te gaan of te investeren. Cala de Finestrat staat bekend om het gouden zand, het heldere water en de vredige sfeer, terwijl het toch dicht bij de grote steden ligt. De luchthaven van Alicante ligt op 55 km afstand (ongeveer 40 minuten met de auto).









