Desert Springs Golf Resort biedt veel mogelijkheden
Desert Gold is een privéwoonwijk met een selectie van villa’s met drie en vier slaapkamers in Desert Springs Golf Resort.
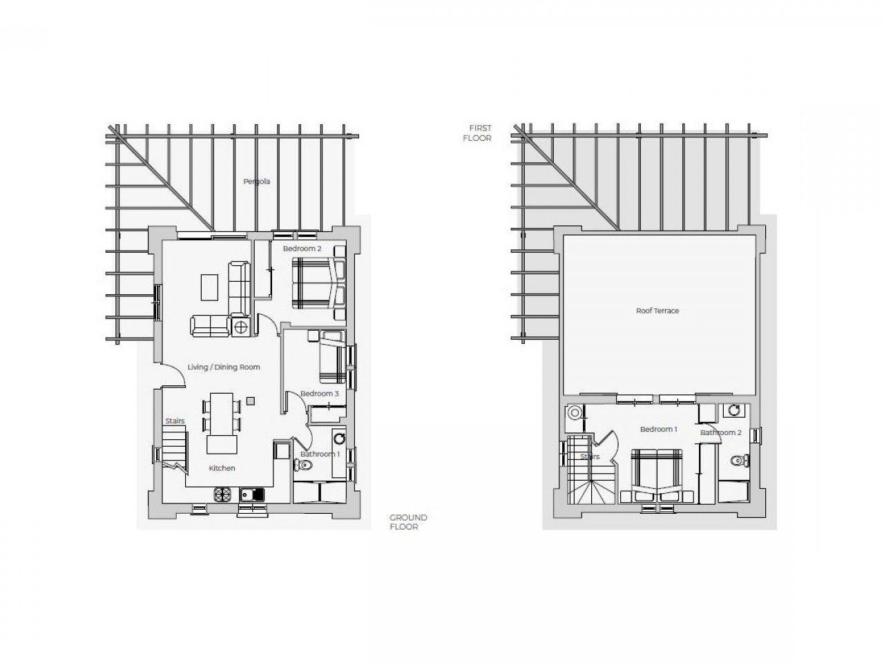
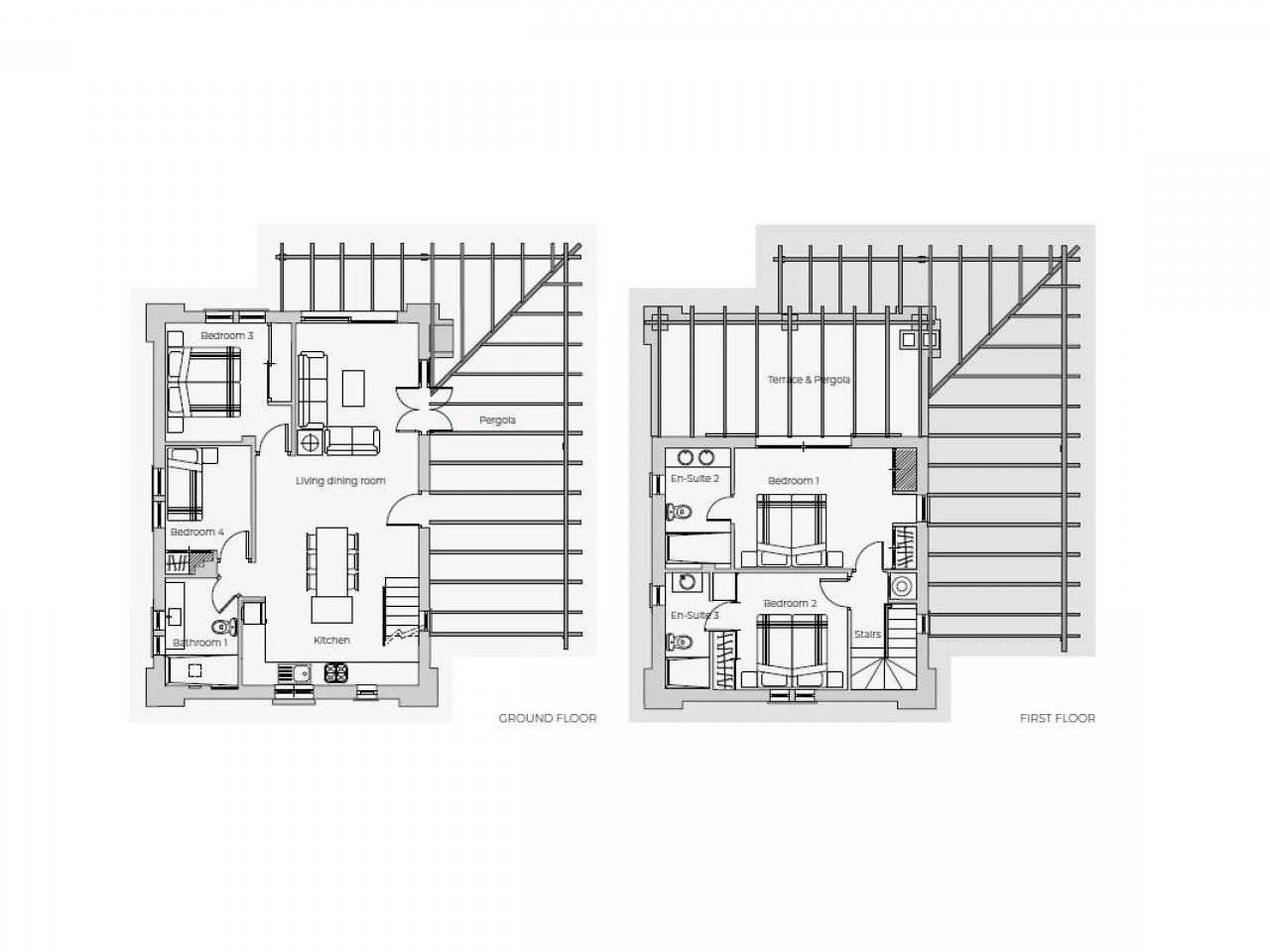
De Buenaventura-villa’s met drie slaapkamers liggen in een intieme en veilige enclave en hebben een hoofdslaapkamer op de eerste verdieping die uitkomt op een groot open terras. De El Paso-villa’s met vier slaapkamers hebben twee slaapkamers op de eerste verdieping, waarvan de hoofdslaapkamer uitkomt op een groot open terras. Beide modellen hebben een volledig aangelegde tuin en een ruim terras om buiten te eten, en een toegewezen ondergrondse parkeerplaats.
Deze villa’s zijn gebouwd met grote terrassen en pergola’s in hun eigen privétuinen, maar liggen in clusters die prachtige, individueel aangelegde tuinen en zwembaden delen in semi-besloten gemeenschappen. Ze bieden een prachtig uitzicht over de kampioenschapsgolfbaan Indiana en de bergketens daarachter en liggen op korte afstand van alle resortfaciliteiten.
Desert Springs Resort is uniek, gelegen in een van de meest rustige en gewilde enclaves aan de kust van Andalusië in Cuevas de Almanzora en Vera in Almería. Het is een bekroond golf-, sport- en recreatieoord, gelegen tussen rotsachtige uitlopers en smaragdgroene fairways, genesteld in een luxe landgoed. Het resort is omgeven door ongerepte natuur en biedt een spectaculair uitzicht op karakteristieke bergketens en de Middellandse Zee. Desert Springs heeft een ongeëvenaarde ligging op een plateau dat boven de vlakte van de Almanzora-rivier uitsteekt, op slechts enkele kilometers landinwaarts van de badplaatsen Vera en Villaricos. De dichtstbijzijnde stad is het marktstadje Cuevas de Almanzora en er zijn ook winkels in Palomares. Het strand en het mooie havenstadje Villaricos liggen net voorbij Palomares en hebben een keur aan goede bars en restaurants, waaronder een uitstekende strandbar. De internationale luchthaven van Almeria ligt op 45 minuten rijden via de A7, Murcia/Corvera op 70 minuten en Alicante op 110 minuten met de auto.










