3 slaapkamer Villa in Sucina grootte 165m2

€660.000

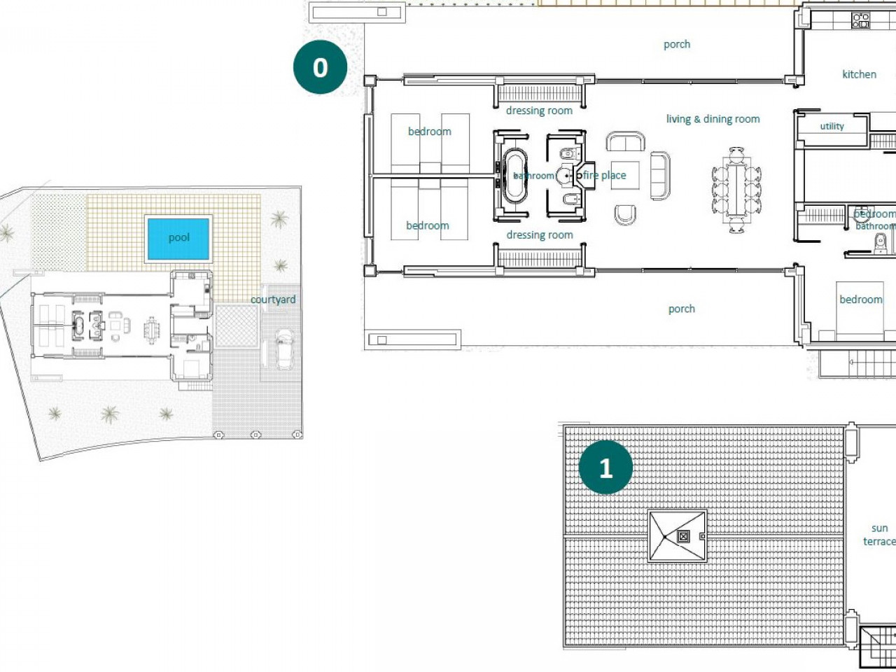
Een mooie combi dit wonen aan de golfcourse Vrijstaande huizen in mediterrane stijl met privézwembad met 6 modellen om uit te kiezen in een omheinde golfgemeenschap in Peraleja Golf Resort in Costa Cálida.
20 vrijstaande villa’s met 6 modellen om uit te kiezen met 2, 3 of 4 slaapkamers en 1, 2 of 3 verdiepingen op kavels variërend van 375 tot 800 m2. Sommige wooneenheden hebben een solarium op het dak. Ontworpen met schuine daken, lichte woon/eetkamer met een gezellige houtkachel en natuurlijke materialen zoals hout en steen, gaan deze woningen naadloos op in het omringende landschap, terwijl ze een elegant en tijdloos interieur bieden.
Deze mediterrane woningen staan op ruime kavels, elk met een privézwembad, volledig aangelegde tuin en parkeerplaats.
Perpleja Origins ligt in het prestigieuze Peraleja Golf Resort, in de regio Murcia in het zuiden van Spanje. Het resort heeft een 24-uurs beveiligingspoort, een pianobar en een clubhuis met een gastronomisch restaurant. Het complex is omgeven door beschermde natuurgebieden waar wandel-, jogging- en fietspaden worden aangelegd voor de bewoners. De 18-holes golfbaan, oorspronkelijk ontworpen door de legendarische Severiano Ballesteros, wordt momenteel gerenoveerd en zal naar verwachting eind 2025 heropend worden. Sommige woningen en de sociale club hebben uitzicht op de zee in de verte. De luchthaven van Murcia ligt op 25 km (15 min. met de auto) van het resort.

3 slaapkamer Villa in Sucina grootte 165m2

Een mooie combi dit wonen aan de golfcourse Vrijstaande huizen in mediterrane stijl met privézwembad met 6 modellen om uit te kiezen in een omheinde golfgemeenschap in Peraleja Golf Resort in Costa Cálida. 20 vrijstaande villa’s met 6 modellen om uit te kiezen met 2, 3 of 4 slaapkamers en 1, 2 of 3 verdiepingen op kavels variërend van 375 tot 800 m2. Sommige wooneenheden hebben een solarium op het dak. Ontworpen met schuine daken, lichte woon/eetkamer met een gezellige houtkachel en natuurlijke materialen zoals hout en steen, gaan deze woningen naadloos op in het omringende landschap, terwijl ze een elegant en tijdloos interieur bieden. Deze mediterrane woningen staan op ruime kavels, elk met een privézwembad, volledig aangelegde tuin en parkeerplaats. Perpleja Origins ligt in het prestigieuze Peraleja Golf Resort, in de regio Murcia in het zuiden van Spanje. Het resort heeft een 24-uurs beveiligingspoort, een pianobar en een clubhuis met een gastronomisch restaurant. Het complex is omgeven door beschermde natuurgebieden waar wandel-, jogging- en fietspaden worden aangelegd voor de bewoners. De 18-holes golfbaan, oorspronkelijk ontworpen door de legendarische Severiano Ballesteros, wordt momenteel gerenoveerd en zal naar verwachting eind 2025 heropend worden. Sommige woningen en de sociale club hebben uitzicht op de zee in de verte. De luchthaven van Murcia ligt op 25 km (15 min. met de auto) van het resort.

€660000

heeft u interesse in deze woning?

Neem direct contact met ons op! Vul het onderstaande formulier in en wij zijn u graag van dienst. Ook kunt u ons telefonisch bereiken via (0031)165 599993

Ontdek meer van ons aanbod

€243500

Uw nieuwe woonomgeving? Nieuwe appartementen van Edificio Aurora, van Alhama Nature Resort zijn gelegen in Condado de Alhama, Murcia, binnen…

Grootte: 73 M2

2

2

€890000

De verkoop is gestart, kiest u voor een geweldig uitzicht in Calpe? De verkoop is gestart, voor een geweldig uitzicht in…

Grootte: 119 M2

3

2

€550000

Kleinschalig complex met luxe appartementen Royal Park River is een exclusief woonproject van slechts 9 moderne appartementen met uitzicht op de…

Grootte: 92 M2

3

2

Bezoek onze evenementen

Bezoek ons op diverse evenementen, zoals tentoonstellingen, seminars en beurzen.

Kom langs en ontdek hoe wij u kunnen helpen uw droomwoning in Spanje te vinden!