Ruime woningen met maar liefst 4 slaapkamers
Residential Azahares is een luxe wooncomplex bestaande uit vier slaapkamer townhouses in een rustige, goed bereikbare omgeving in Rafal, Alicante.
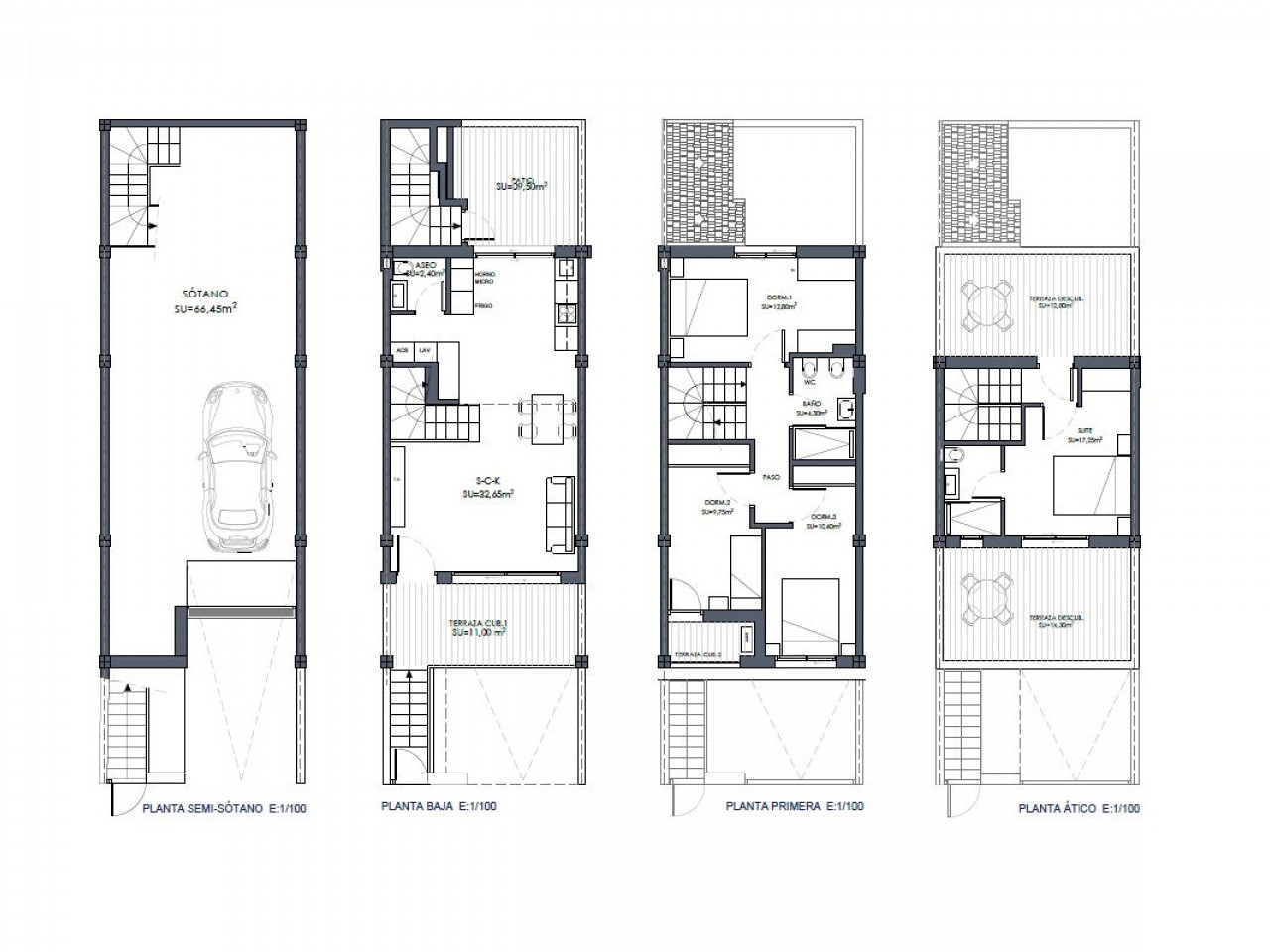
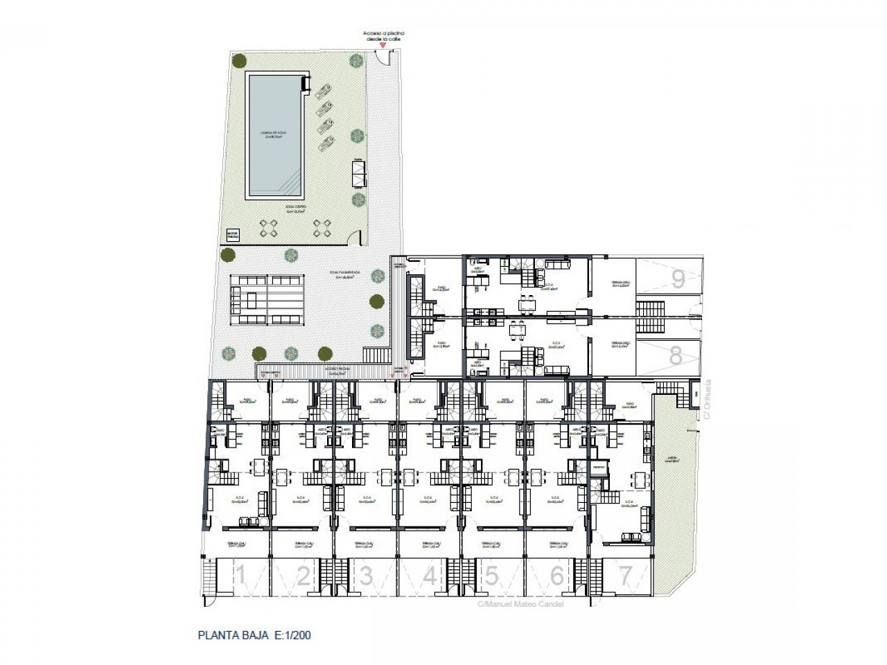
Dit resort is een exclusief boetiekproject van slechts 9 herenhuizen, elk met 4 slaapkamers, 2 badkamers en een gastentoilet, met een bebouwde oppervlakte van meer dan 200 m², inclusief een kelder van 66 m² met privé parkeerplaats voor 2 auto’s. Er zijn meerdere terrassen, waaronder een privéterras op de tweede verdieping. Geniet van het uitzicht op het open landschap vanaf de bovenste verdiepingen en profiteer van veel natuurlijk licht en royale binnenruimtes die zijn ontworpen voor het moderne gezinsleven.
Geniet van de gemeenschappelijke ruimtes, waaronder een zwembad met kunstgras en recreatiegebieden.
Gelegen in het charmante stadje Rafal, in het hart van de Vega Baja-regio van Alicante, biedt dit onlangs gerenoveerde woonproject een unieke kans om te genieten van ruimte, comfort en levenskwaliteit in een ontspannen mediterrane omgeving. Deze gemeenschap ligt in een rustige omgeving naast het gemeentelijk sportcomplex, op slechts een korte wandeling van het stadscentrum, waar u alle essentiële dagelijkse voorzieningen vindt. Dankzij de uitstekende verbinding met de snelweg A-7 is het project goed bereikbaar vanuit de grote steden. De luchthaven Alicante-Elche ligt op 47 km afstand van het resort.










