Ruime percelen kenmerken deze villa’s
Mar Egeo is een exclusieve ontwikkeling gelegen op het prachtige La Finca golfresort dat bestaat uit 73 woningen, vrijstaande villa’s, half vrijstaande villa’s en maisonnettes.
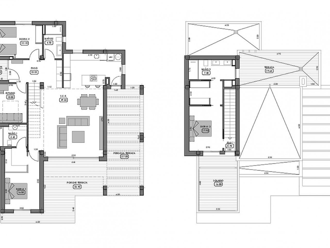
Villa Thasos is gebouwd op twee niveaus en bestaat uit een woon / eetkamer met openslaande deuren naar de tuin en terras met een prive zwembad, een open moderne keuken. Er is een hoofdslaapkamer met inloopkast, en-suite badkamer met toegang tot het terras, nog twee dubbele slaapkamers met inbouwkasten en een gastenbadkamer.
Op de bovenverdieping is de hoofdslaapkamer met inbouwkasten en en-suite badkamer, met toegang tot een terras met ruimte voor terrasmeubilair en nog een terras om de hele dag van de zon te genieten.
Elke villa is gelegen op een groot perceel en beschikt over een privé zwembad, privé parkeerplaats, warm/koud geventileerde airconditioning en volledig ingerichte badkamers compleet met douche schermen en vloerverwarming.
Elke villa heeft een privé zwembad en er zijn ook mooie gemeenschappelijke tuinen, een zonneweide en een groot gemeenschappelijk zwembad.
La Finca golf resort is omgeven door een prachtig landschap, een 18 holes golfbaan, luxe spa hotel, clubhuis met terras bar, supermarkten en een grote selectie van bars, winkels en restaurants.
La Finca golf resort ligt dicht bij het Spaanse dorp Algorfa en is een korte 15 minuten rijden van de kust waar u de prachtige stranden van Guardamar vindt. De bruisende steden Los Montesinos en San Miguel, die een groot aantal voorzieningen hebben zoals bars, winkels en restaurants, liggen op slechts een klein eindje rijden.










