En met een privé zwembad!
Nieuw project met hoogwaardige maisonnettes op het zuiden met privézwembad, gelegen in het centrum van Pilar de la Horadada.
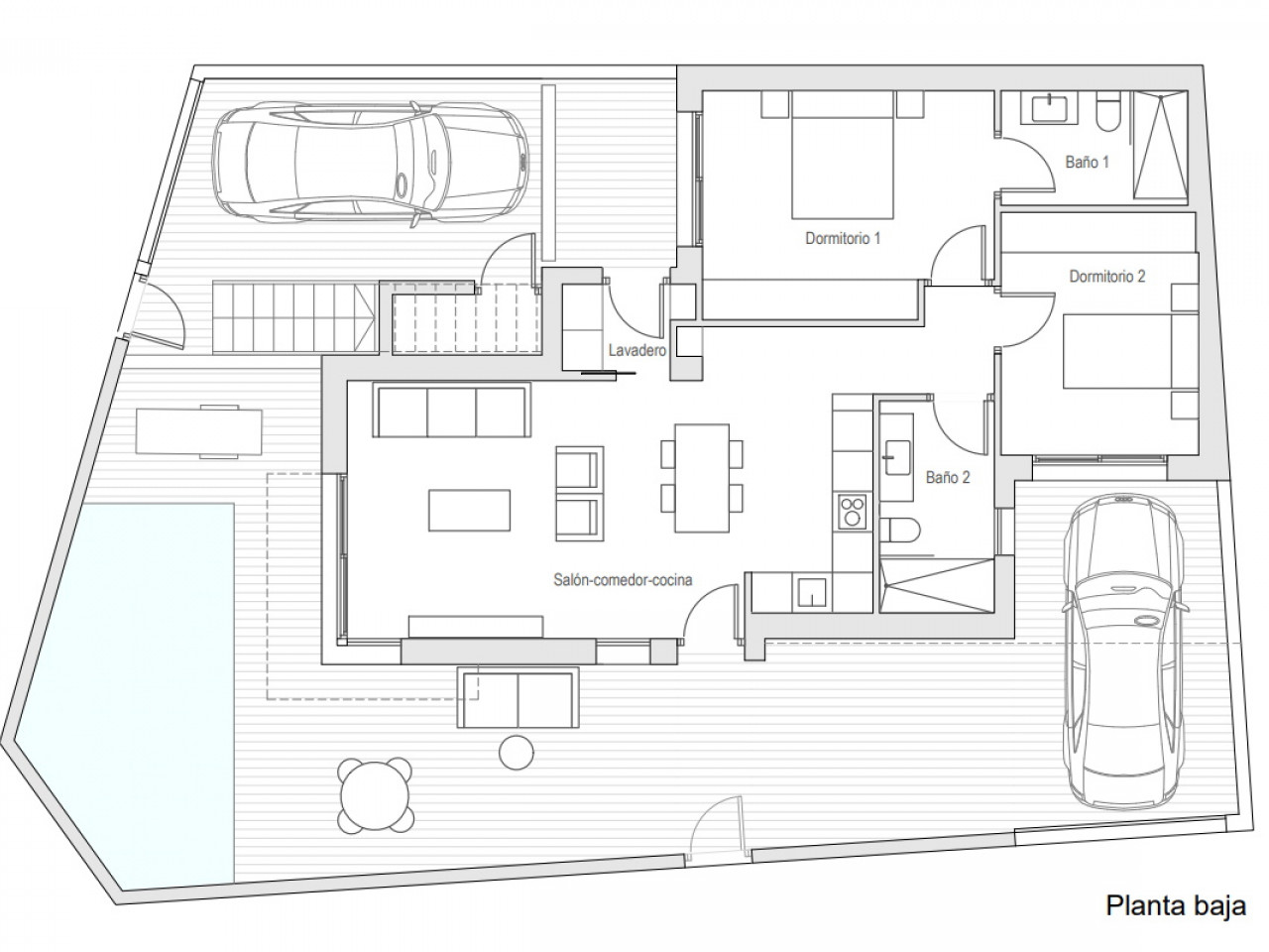
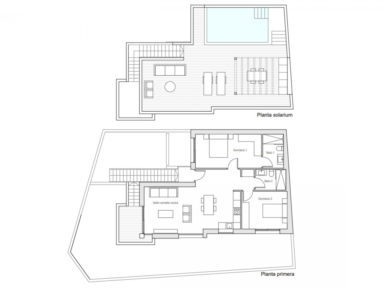
Kies tussen een maisonnette op de begane grond met een ruim terras of een maisonnette op de eerste verdieping met een privéterras en solarium, met twee slaapkamers met inbouwkasten en twee badkamers in moderne stijl (waarvan één en-suite).
Daarnaast beschikt het over een privézwembad, een afgesloten parkeerplaats en een tuin op de begane grond. De maisonnette op de bovenste verdieping heeft een solarium met uitzicht op zee en een privézwembad, perfect om te genieten van het mediterrane klimaat. Er is een parkeerplaats inbegrepen.
In de buurt van de woningen vindt u verschillende restaurants, supermarkten, winkels en apotheken. Met de auto of fiets bent u in korte tijd bij de mooie stranden van Torre de la Horadada, de haven, verschillende winkelcentra of de bekende golfbaan Lo Romero. Deze woningen zijn gemakkelijk bereikbaar vanaf de luchthaven van Alicante (45 minuten).





