Het wordt steeds leuker in El Raso
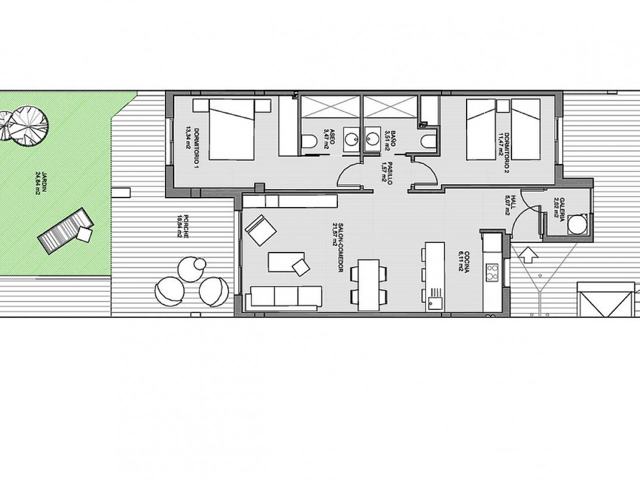
Area Beach III is een privé wooncomplex, bestaande uit 135 woningen met 2 of 3 slaapkamers, ontworpen op een minimalistische manier en met hoge kwaliteitsnormen, de moderne architectuur harmonieert met onze grote open ruimtes, natuur en zwembaden, en biedt een unieke en rustige sfeer.
Area Beach III is een sprong voorwaarts ten opzichte van onze vorige wooncomplexen, met onder andere een GYM-Spa ruimte met uitzicht op het groen, de zwembaden en vanaf het terras met uitzicht op de zoutlagune van La Mata, een paddle tennisbaan, enz. Bovendien en dankzij de vijf niveaus van sommige van de blokken die deel uitmaken van de residentiële, alle gericht op het zuiden, omvatten we in onze luxe penthouses, volledig uitgeruste keuken op het solarium, buitendouche (warm / koud water), en jacuzzi gebied, om de unieke ervaring van het leven in de voorkant van een unieke en onherhaalbare natuurlijke omgeving te voltooien.
De ontwikkeling is gelegen op een uniek en onherhaalbaar perceel, grenzend aan het natuurlijke landschap van de zoutlagune, genieten van de biodiversiteit en de unieke omgeving, dicht bij de beste stranden van de Middellandse Zee.
Area Beach III ligt in El Raso de Guardamar del Segura, met allerlei diensten en voorzieningen. Tegelijkertijd kunt u dankzij de nabijheid van het strand van El Moncayo een fietstocht maken en genieten van het beste klimaat van de Costa Blanca.










