een volgend plaatje in San Miguel….
Sol de Salinas is een exclusief wooncomplex bestaande uit 5 appartementenblokken met ruime gemeenschappelijke ruimtes, ontworpen om comfort en levenskwaliteit te bieden in een unieke natuurlijke omgeving in San Miguel de Salinas.
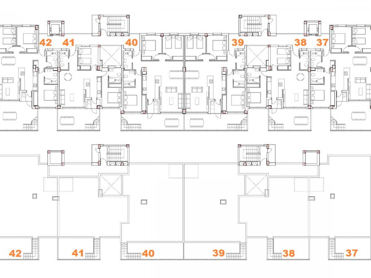
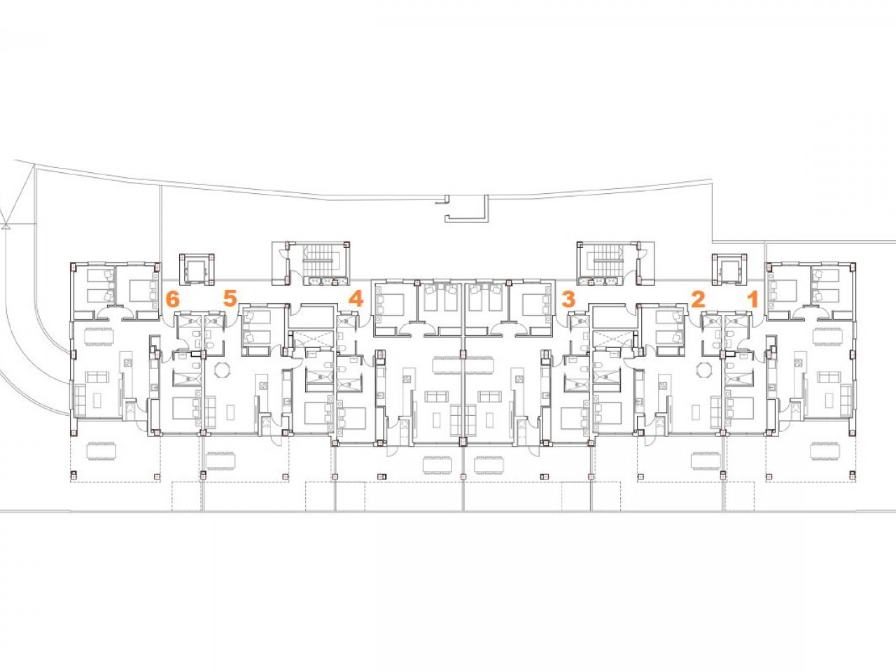
In dit exclusieve wooncomplex kun je kiezen uit appartementen met twee of drie slaapkamers op de begane grond met grote privétuinen, tussenverdiepingen met terrassen van meer dan 20 m² en penthouses met terrassen en een privésolarium op het dak.
Elk appartement wordt verkocht met parkeerplaats en berging inbegrepen in de prijs.
Dit omheinde complex heeft een spectaculaire gemeenschappelijke tuin van bijna 10.000 m², verdeeld over drie niveaus en geïntegreerd met drie gemeenschappelijke zwembaden, omringd door natuurlijke gazons en een zorgvuldig geselecteerd assortiment bomen en planten.
San Miguel de Salinas is een charmant stadje in de regio Vega Baja del Segura, op slechts een paar minuten van de beste stranden en golfbanen van de Costa Blanca. Omgeven door een bevoorrechte natuurlijke omgeving biedt de gemeente een rustige sfeer en alle essentiële voorzieningen zoals supermarkten, restaurants, gezondheidscentra en scholen. De luchthaven van Alicante ligt op 50 km afstand en die van Murcia (Corvera) op 55 km.










