“Wonen op stand” ? Dan ligt hier een mooie kans.
Rosa Morada is een nieuwbouwproject op slechts enkele minuten van de zee, in de bekende wijk San Blas in Santiago de la Ribera, een van de aantrekkelijkste gebieden van de Mar Menor.
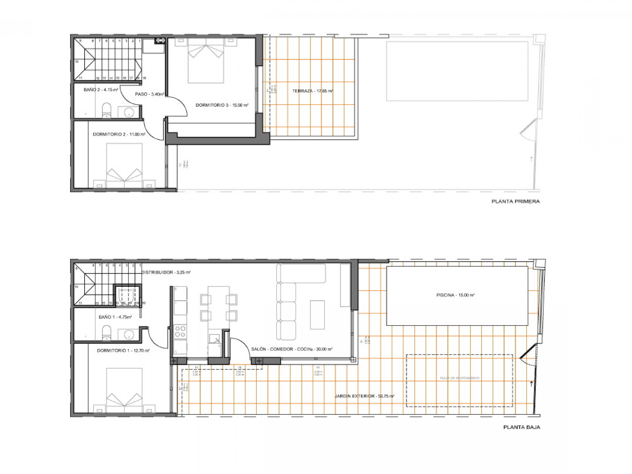
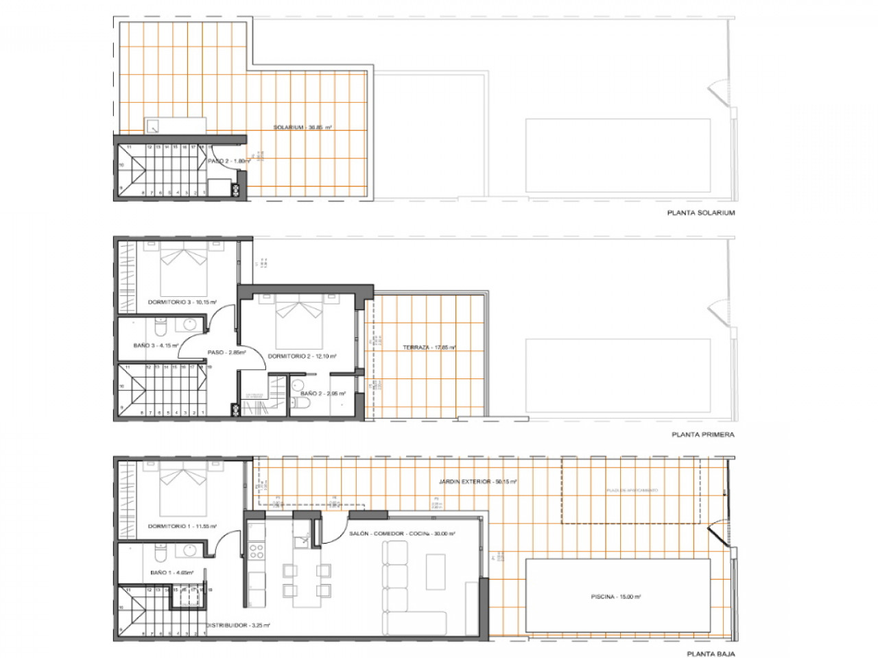
Dit project bestaat uit 12 halfvrijstaande villa’s met 3 slaapkamers en 2 of 3 badkamers, verdeeld over twee verdiepingen, inclusief een privézwembad van 15 m2, een terras van 17,85 m2 en een solarium van 36,85 m2 met zomerkeuken in geselecteerde woningen.
De villa’s hebben een elegante en functionele inrichting, een open woon-eetkamer en keuken met alle elektrische apparatuur op de begane grond, met grote glazen schuifdeuren naar het terras vanuit de woonkamer en slaapkamer. Op de eerste verdieping zijn er twee tweepersoonsslaapkamers met eigen badkamer en toegang tot het balkon via glazen openslaande deuren en een extra badkamer. Afhankelijk van de woning is er ook toegang tot het grote solarium met zomerkeuken.
Met een privézwembad en parkeerplaats op het perceel biedt deze woning maximaal comfort op een ongeëvenaarde locatie, ideaal om het hele jaar door te genieten van de zon, het strand en de mediterrane levenskwaliteit.
Santiago de la Ribera ligt aan de Mar Menor, aan de kust van Murcia. Dit oude vissersdorpje heeft 4 kilometer strand met fijn, goudkleurig zand. De mediterrane wateren zijn ideaal om het hele jaar door te genieten van de zon, de zee en watersporten. Het heeft een aantrekkelijke, met palmbomen omzoomde boulevard die langs het hele strand loopt. Het heeft een breed aanbod aan hotels en restaurants en een zeer rijke lokale gastronomie. Bovendien beschikt Santiago de la Ribera over alle voorzieningen, waardoor het een van de favoriete bestemmingen van de Costa Cálida is. Dankzij de uitstekende ligging zijn Cartagena, Murcia en Orihuela Costa gemakkelijk te bereiken.










