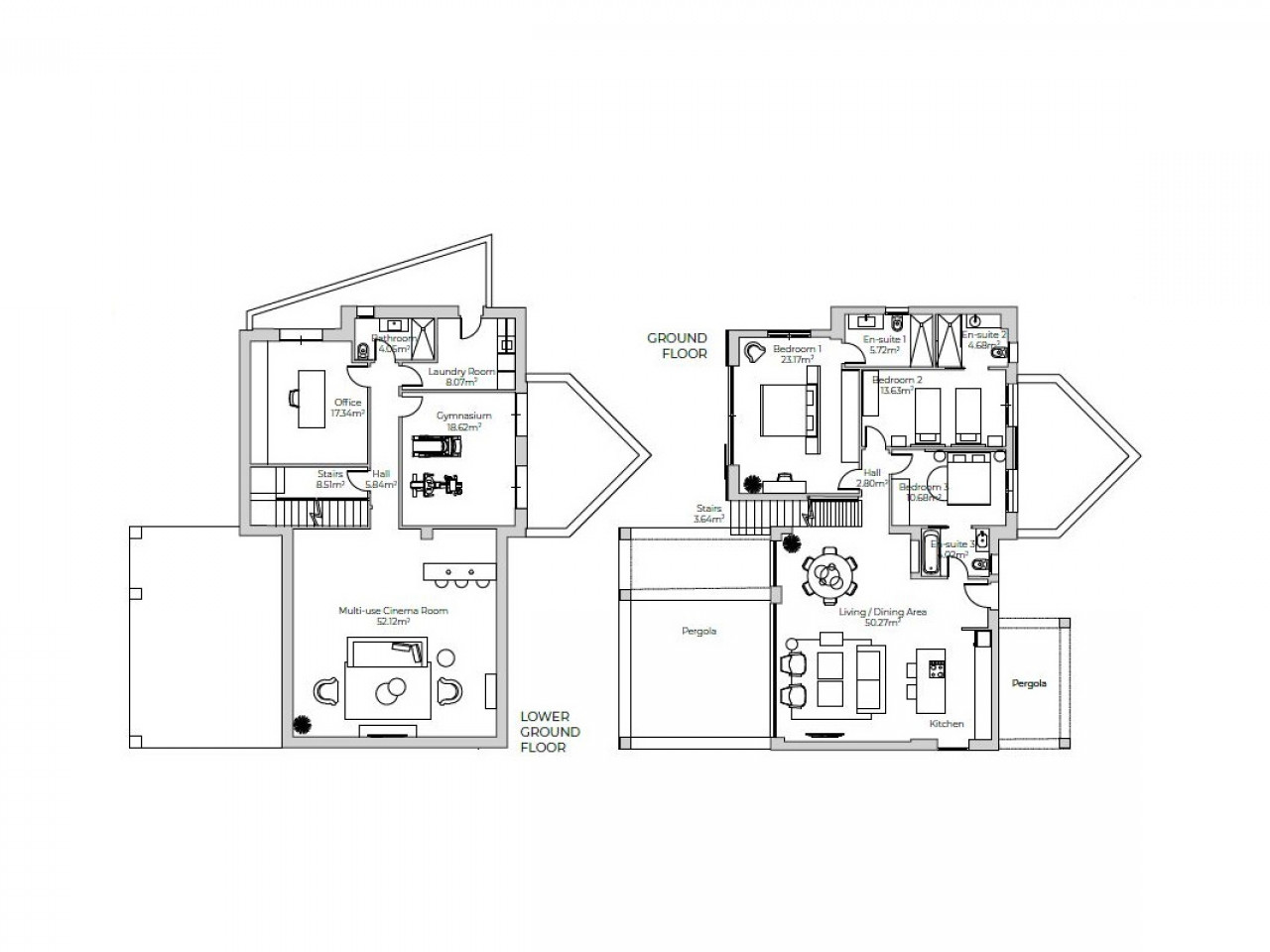
Een bijzondere villa. langs een bijzondere golf-course Sweet Water Island is een beperkte selectie van luxe villa’s aan de fairway met een prachtig uitzicht over de kampioenschapsgolfbaan Indiana en de bergketens daarachter in Desert Spring Golf Resort. Deze prachtige, moderne en stijlvolle ontwikkeling ligt op een benijdenswaardige locatie in het Desert Springs resort en biedt een selectie van villa’s met drie of vier slaapkamers en een prachtig uitzicht over de kampioenschapsgolfbaan Indiana en de bergketens daarachter.Het eigentijdse ontwerp en het natuurlijke licht dat een algeheel gevoel van ruimte creëert, zijn de opvallende kenmerken van het verfijnde interieur dat stijlvolle woningen met een moderne uitstraling biedt. Een omheinde voortuin, diepe schaduwrijke veranda’s, een eigen aangelegde tuin met direct uitzicht op de golfbaan, een privézwembad, een ingebouwde barbecue en uitgebreide dakterrassen zijn slechts enkele van de externe kenmerken van de woningen. Desert Springs Resort is uniek, gelegen in een van de meest rustige en gewilde enclaves aan de Andalusische kust in Cuevas de Almanzora en Vera in Almería. Het is een bekroond golf-, sport- en recreatieoord, gelegen tussen rotsachtige uitlopers en smaragdgroene fairways, genesteld in een luxe landgoed. Het resort is omgeven door ongerepte natuur en biedt een spectaculair uitzicht op karakteristieke bergketens en de Middellandse Zee. Desert Springs heeft een ongeëvenaarde ligging op een plateau dat uitsteekt boven de vlakte van de Almanzora-rivier, op slechts enkele kilometers landinwaarts van de badplaatsen Vera en Villaricos. De dichtstbijzijnde stad is het marktstadje Cuevas de Almanzora en er zijn ook winkels in Palomares. Het strand en het mooie havenstadje Villaricos liggen net voorbij Palomares en hebben een keur aan goede bars en restaurants, waaronder een uitstekende strandbar. De internationale luchthaven van Almeria ligt op 45 minuten rijden via de A7, Murcia/Corvera op 70 minuten en Alicante op 110 minuten met de auto.










