Natura Park, een oude bekende die we steeds meer gaan waarderen!
Natura Park IV is een wooncomplex met moderne halfvrijstaande en vrijstaande woningen, ontworpen met de hoogste kwaliteit afwerking. Alle woningen beschikken over een privézwembad en een solarium, zodat u de hele dag kunt genieten van de mediterrane zon.
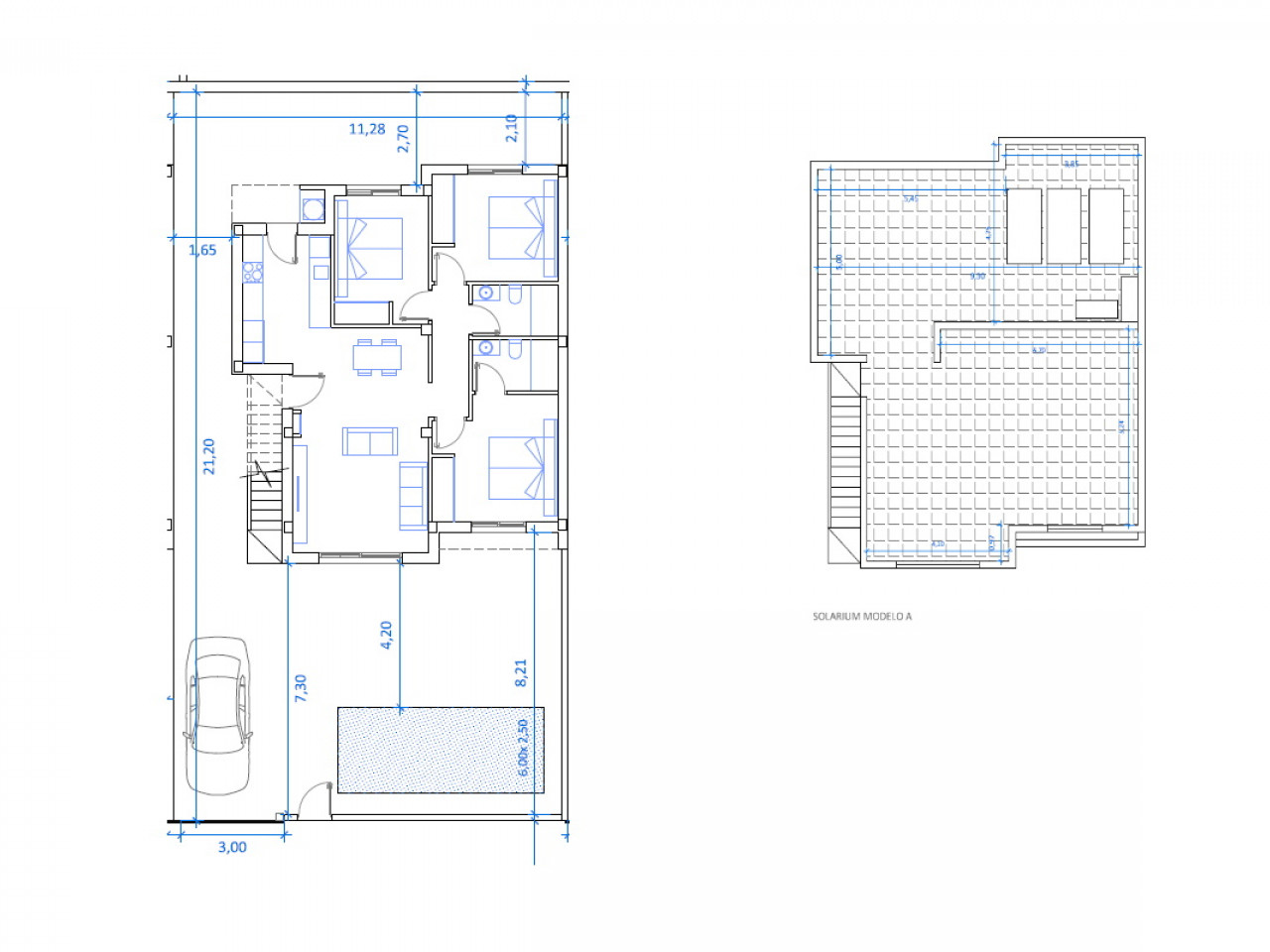
Deze gelijkvloerse woningen bestaan uit drie tweepersoonsslaapkamers (allemaal met inbouwkasten), twee badkamers (waarvan één en-suite), een volledig ingerichte moderne keuken en een open woon-/eetkamer die uitkomt op de privétuin met zwembad. Een trap leidt naar een groot privédakterras met prachtig uitzicht. Er is parkeergelegenheid op het perceel.
Oasis de La Marina is een rustige woonwijk omgeven door natuur, tussen de plaatsen San Fulgencio, La Marina en Guardamar del Segura. De locatie biedt nabijheid tot alle voorzieningen voor het dagelijks leven, evenals recreatie- en sportmogelijkheden. Het project zelf ligt op slechts 4,5 kilometer van het strand en in de directe omgeving van vele dagelijkse voorzieningen, waaronder winkels, bars, restaurants en supermarkten, waardoor het perfect is voor zowel permanent wonen als voor vakanties. Het heeft uitstekende verbindingen met Alicante, Elche en Torrevieja. La Marina ligt op slechts 20 minuten rijden van de luchthaven van Alicante.







