Een mooie combi dit wonen aan de golfcourse
Vrijstaande huizen in mediterrane stijl met privézwembad met 6 modellen om uit te kiezen in een omheinde golfgemeenschap in Peraleja Golf Resort in Costa Cálida.
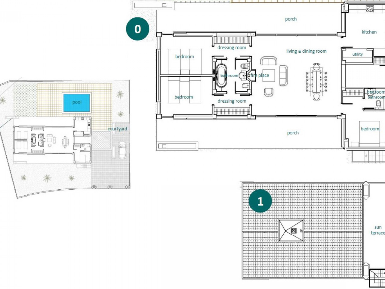
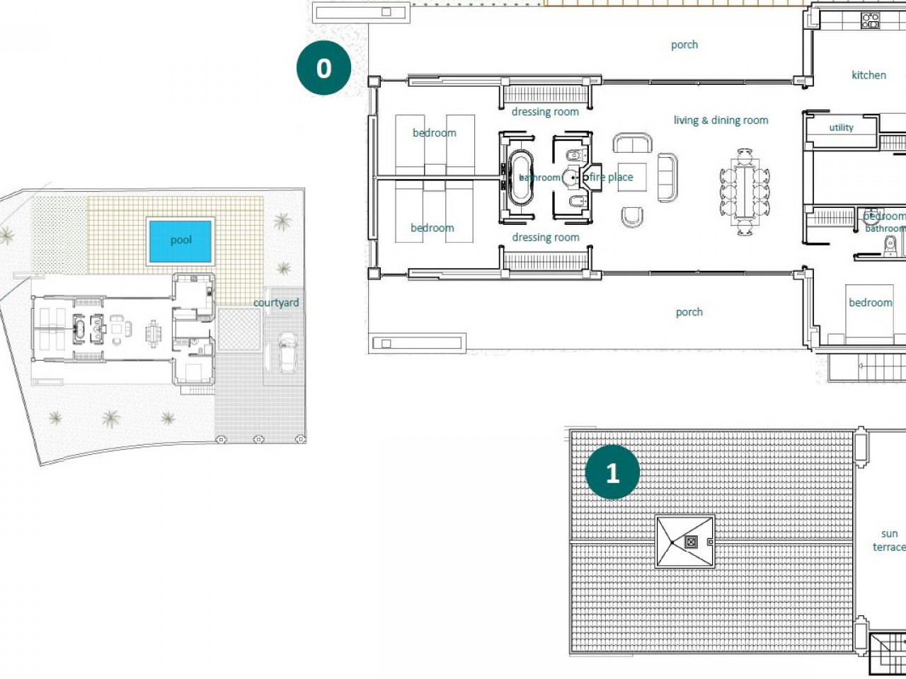
20 vrijstaande villa’s met 6 modellen om uit te kiezen met 2, 3 of 4 slaapkamers en 1, 2 of 3 verdiepingen op kavels variërend van 375 tot 800 m2. Sommige wooneenheden hebben een solarium op het dak. Ontworpen met schuine daken, lichte woon/eetkamer met een gezellige houtkachel en natuurlijke materialen zoals hout en steen, gaan deze woningen naadloos op in het omringende landschap, terwijl ze een elegant en tijdloos interieur bieden.
Deze mediterrane woningen staan op ruime kavels, elk met een privézwembad, volledig aangelegde tuin en parkeerplaats.
Perpleja Origins ligt in het prestigieuze Peraleja Golf Resort, in de regio Murcia in het zuiden van Spanje. Het resort heeft een 24-uurs beveiligingspoort, een pianobar en een clubhuis met een gastronomisch restaurant. Het complex is omgeven door beschermde natuurgebieden waar wandel-, jogging- en fietspaden worden aangelegd voor de bewoners. De 18-holes golfbaan, oorspronkelijk ontworpen door de legendarische Severiano Ballesteros, wordt momenteel gerenoveerd en zal naar verwachting eind 2025 heropend worden. Sommige woningen en de sociale club hebben uitzicht op de zee in de verte. De luchthaven van Murcia ligt op 25 km (15 min. met de auto) van het resort.










