Stijlvolle villa’s in een fascinerende omgeving
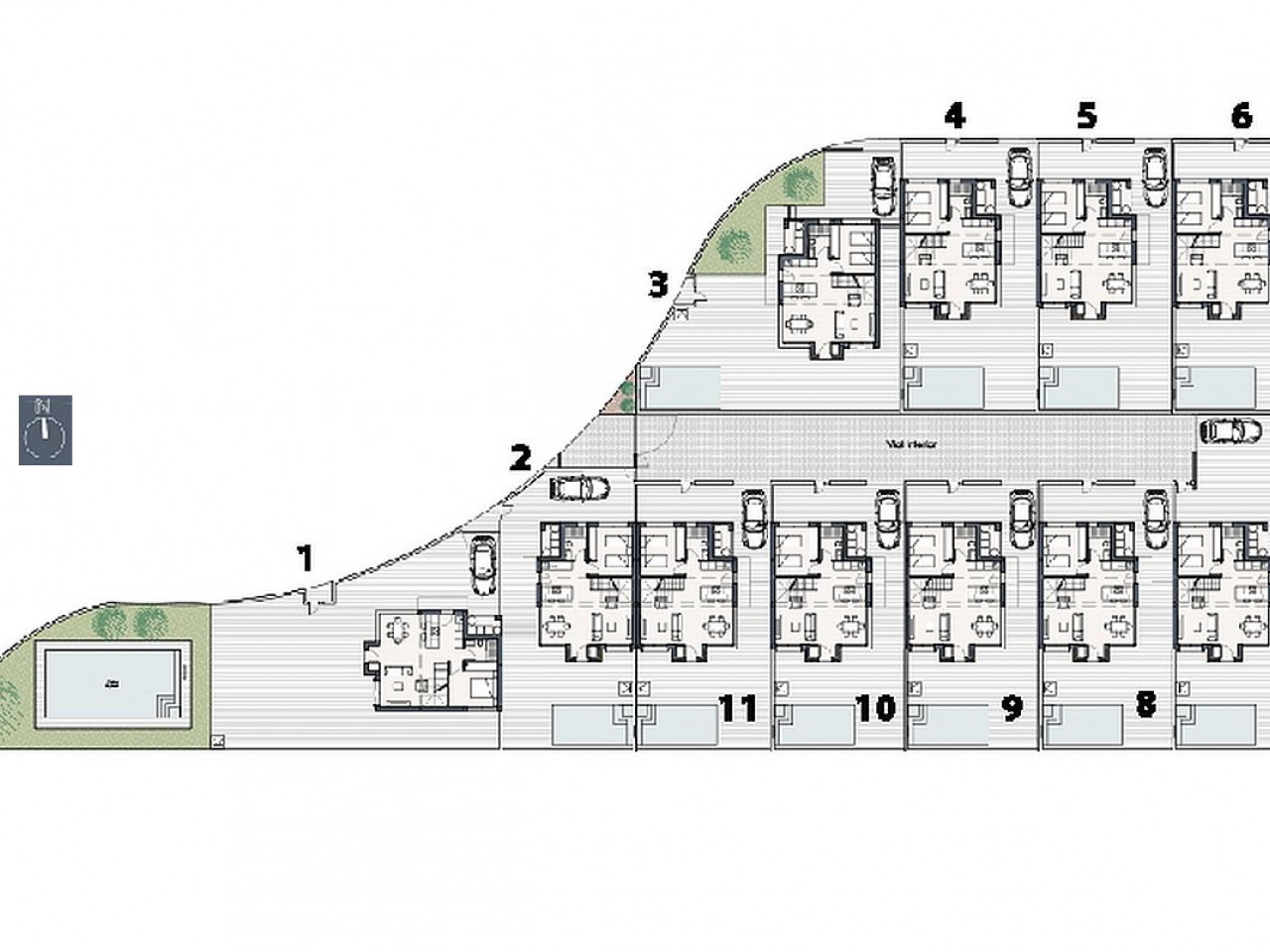
Laguna Azul is een nieuwe prachtige woonwijk in La Herrada, Los Montesinos, bestaande uit 11 luxe onafhankelijke villa’s.
Hier hebben we deze fantastische villa’s met een eigentijds en elegant ontwerp die zijn gebouwd met de hoogste standaard van materialen en afwerkingen.
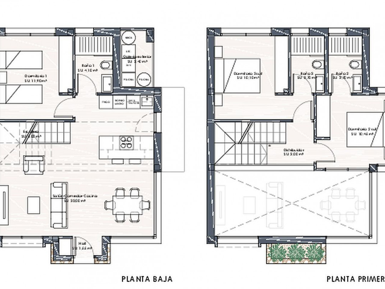
De villa’s hebben drie grote slaapkamers met ingebouwde kasten, en drie badkamers allen met vloerverwarming. De woon- en eetkamer is groot en ruim en er is een moderne open keuken.
Het beste deel is het prachtige zwembad omgeven door mooie patio ruimte die perfect is voor het diner onder de start op een warme zomeravond! Een groot solarium op het dak is inbegrepen en kelders zijn optioneel.
Is gelegen in La Herrada gebied, dicht bij supermarkt, bars en winkels en in de buurt van Ciudad Quesada en op 1 minuut van de snelweg Alicante – Cartagena.
Deze ontwikkeling is ideaal gelegen als gevolg van het prachtige uitzicht op de Torrevieja & La Mata zoutmeren en binnen een korte rit naar “La Finca” Golf Course en La Marquesa. 5 minuten van Pinada de Guardamar en de stranden van Guardamar en 10 minuten van Torrevieja. Vlakbij een klein uitstekend bewaard Mediterraans pijnboombos en op slechts vijfentwintig minuten van de luchthaven van Alicante.
Los Montesinos is een typisch Spaans dorp, gelegen in een landelijke omgeving, dat een mooi kerkplein heeft met een selectie van bars en restaurants – perfect om te genieten van een ontspannen middag of avond. Ook vele hectaren sinaasappelboomgaarden bedekken het land in dit deel van de Costa. Als gevolg daarvan brengt de lente de zoete geur van sinaasappelbloesem naar het gebied.










