Knappe villa’s bij deze prachtige golf course!
Oasis Villas 2 zal een exclusief complex vormen dat bestaat uit 11 onafhankelijke moderne villa’s, gelegen op het golfresort La Finca, op korte loopafstand van een groot aanbod aan bars, winkels en restaurants.
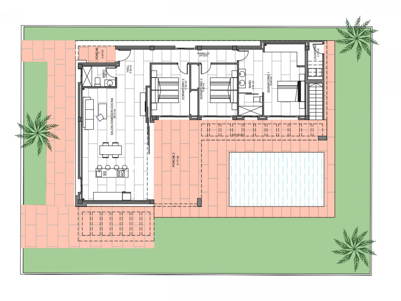
De woningen bieden de keuze uit drie slaapkamers en twee badkamers, of vier slaapkamers en drie badkamers, met behoud van hetzelfde moderne en functionele ontwerp, zowel binnen als buiten.
Deze villa is volledig gelijkvloers en bestaat uit een woon-/eetkamer met openslaande deuren naar de tuin en het terras met een privézwembad, en een open moderne keuken. Er is een hoofdslaapkamer met kleedkamer, en suite badkamer met toegang tot het terras, twee verdere tweepersoonsslaapkamers met inbouwkasten en toegang tot het terras en een gastenbadkamer. Een trap leidt naar een groot privé-dakterras met buitenkeuken en pergola, dat uitzicht biedt op het open landschap en de hele dag zon heeft.
Elke villa komt op een onafhankelijk perceel van ongeveer 500 m² en heeft een privézwembad, solarium, parkeerplaats en ruime aangelegde tuinen, waardoor privacy, comfort en kwaliteit in elk detail worden gegarandeerd.
Oasis Villas 2 ligt in de urbanisatie La Finca Golf Resort, behorend tot de gemeente Algorfa, in het zuiden van Alicante en vlakbij Torrevieja en Orihuela Costa. Het is een perfecte urbanisatie, omgeven door natuur, waar u een groot aanbod aan recreatie- en sportfaciliteiten vindt, zoals de golfbaan met 18 holes, die als een van de beste in de omgeving wordt beschouwd. Door de nabijheid van de stranden zijn onze villa’s ook perfect gelegen om zowel van de bergen als van de zee te genieten. De luchthaven van Alicante ligt op 40 minuten rijden en de luchthaven van Murcia op 55 minuten rijden.










