Op 5 minuten wandelen van het strand gelegen, ideaal voor verhuur.
Alonis Living is een exclusief project met appartementen op minder dan 5 minuten lopen van Playa del Torres, in Villajoyosa.
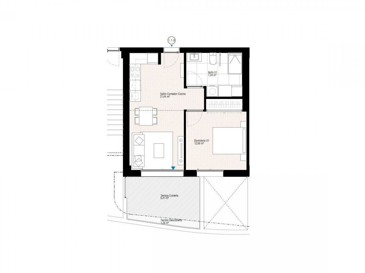
Dit exclusieve project met 164 appartementen en penthouses met 1, 2 en 3 slaapkamers is ontworpen om je de levensstijl te bieden waar je altijd al van hebt gedroomd.
Elke hoek van je huis in Alonis Living is ontworpen om de ruimte te maximaliseren. De keuken en woonkamer komen samen in één open ruimte die ruimtelijkheid en helderheid uitademt. De keuken, uitgerust met apparatuur van topkwaliteit, combineert geavanceerde technologie met een elegant en functioneel ontwerp. De woonkamer opent naar buiten om natuurlijk licht te integreren als een andere protagonist in het ontwerp. De slaapkamers, ruim en licht, nodigen je uit om uit te rusten in een sfeer die warmte en verfijning combineert. In de badkamers ontmoeten functionaliteit en schoonheid elkaar in een elegant, avant-gardistisch ontwerp.
In de gemeenschappelijke ruimtes is elke ruimte met zorg ontworpen om je meerdere ontspanningsmogelijkheden te bieden, op het dak is er een overloopzwembad, buitenbarbecue en een Gourmet & Social Room, 3 zwembaden omringd door prachtige tuinen: een tropisch zwembad voor volwassenen met toegang tot het strand, een kinderbad en een verwarmde zwembaan, een verwarmde jacuzzi, onze mini-golf en putting green gebied, indoor fitnessruimte, uitgerust met de nieuwste technologie, of in de outdoor calisthenics circuit, fietsenstalling, co-working kamer, slimme pakket brievenbussen, security lodge bij de hoofdingang van het wooncomplex …
Villajoyosa is een unieke plek die traditie en natuurlijke schoonheid combineert. Op een paar minuten van de meest aantrekkelijke plekken in Villajoyosa ligt Playa del Torres, meer dan 500 meter lang, met weinig bezoekers en het warme en schone water maken deze hoek van Villajoyosa tot een waar paradijs op aarde. Naast het strand kun je genieten van een groot bebost gebied met eucalyptus- en pijnbomen die schaduw en frisheid bieden. Voor natuurliefhebbers biedt Villajoyosa activiteiten zoals duiken en peddelsurfen, maar ook wandel- en fietspaden die je verbinden met ruigere landschappen. Villajoyosa ligt op 20 minuten van de internationale luchthaven van Alicante.










