Wonen nabij golfcourse La Marquesa
Elegante nieuwe luxe villa’s gelegen op de prachtige golfbaan La Marquesa in Ciudad Quesada.
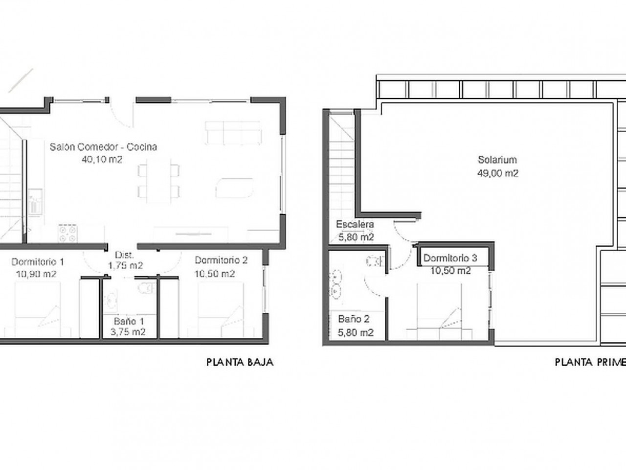
Deze nieuwe villa’s Vega Golf liggen op het zuiden en zijn gebouwd op twee niveaus, hebben 3 slaapkamers en twee badkamers.
Op de begane grond is er een grote woonkamer, eetkamer en open keuken, twee slaapkamers en een familie badkamer. Op de eerste verdieping geeft een grote slaapkamer en badkamer suite uit op het terras van bijna 50 m².
Het huis baadt in het licht dankzij de erkers met uitzicht op de tuin en het zwembad. Er is een betegeld terras met een barbecueplaats en parkeergelegenheid op het perceel.
De villa geniet van een prachtig uitzicht over de golfbaan La Marquesa. Dicht bij de stranden van Guardamar, op slechts 10 minuten en 30 minuten van de luchthaven van Alicante.










