4 slaapkamer Villa in Torrevieja grootte 238m2

€750.000

Erg ruime villa’s met veel extra mogelijkheden Exclusieve villa’s gelegen in de wijk La Mata op slechts 1,2 kilometer van het strand van La Mata.

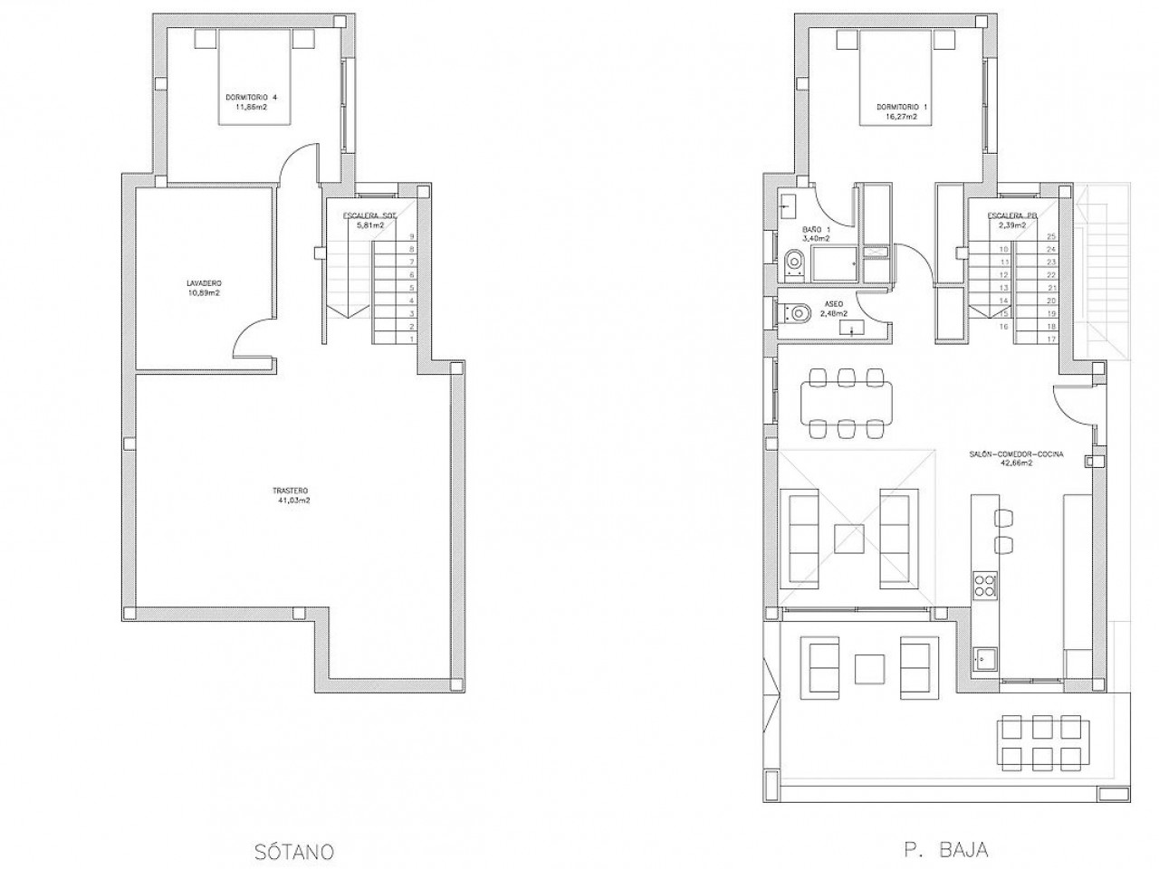
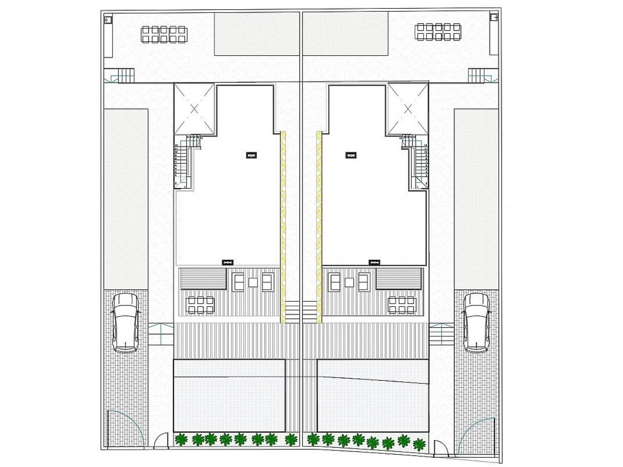
Deze 4 slaapkamers, 3 badkamers en 1 toilet villa’s zijn gebouwd op een perceel van 420m, met 238 m2 bebouwde oppervlakte met kelder en een 72 m2 solarium op de top.

Op de begane grond vinden we een grote woon-eetkamer en open keuken met toegang tot het terras aan de voorzijde, een slaapkamer met inbouwkast en en-suite badkamer en een gastentoilet.
De eerste verdieping is verdeeld in twee grote slaapkamers met inbouwkasten, beide met en-suite badkamer en een grote zithoek of boekenkast.
Bovenaan vinden we een groot solarium van 72 m2 met uitzicht op de omgeving.

De percelen hebben een parkeerplaats en een privé zwembad.

Gelegen in een van de meest prestigieuze wijken van Torrevieja, tussen het stadscentrum van Torrevieja en het dorp La Mata aan zee, 15 minuten lopen naar het beroemde strand van La Mata (5 minuten met de auto), vijf tot tien minuten rijden naar het stadscentrum, het sportcentrum, het waterpark, de straatmarkt en de commerciële centra Ozone, Habaneras en Carrefour. Het winkelcentrum La Zenia Boulevard ligt op 15 minuten rijden en binnen 10 minuten zijn er verschillende golfbanen. De luchthaven van Alicante ligt op 25 minuten rijden.

4 slaapkamer Villa in Torrevieja grootte 238m2

Erg ruime villa’s met veel extra mogelijkheden Exclusieve villa’s gelegen in de wijk La Mata op slechts 1,2 kilometer van het strand van La Mata. Deze 4 slaapkamers, 3 badkamers en 1 toilet villa’s zijn gebouwd op een perceel van 420m, met 238 m2 bebouwde oppervlakte met kelder en een 72 m2 solarium op de top. Op de begane grond vinden we een grote woon-eetkamer en open keuken met toegang tot het terras aan de voorzijde, een slaapkamer met inbouwkast en en-suite badkamer en een gastentoilet. De eerste verdieping is verdeeld in twee grote slaapkamers met inbouwkasten, beide met en-suite badkamer en een grote zithoek of boekenkast. Bovenaan vinden we een groot solarium van 72 m2 met uitzicht op de omgeving. De percelen hebben een parkeerplaats en een privé zwembad. Gelegen in een van de meest prestigieuze wijken van Torrevieja, tussen het stadscentrum van Torrevieja en het dorp La Mata aan zee, 15 minuten lopen naar het beroemde strand van La Mata (5 minuten met de auto), vijf tot tien minuten rijden naar het stadscentrum, het sportcentrum, het waterpark, de straatmarkt en de commerciële centra Ozone, Habaneras en Carrefour. Het winkelcentrum La Zenia Boulevard ligt op 15 minuten rijden en binnen 10 minuten zijn er verschillende golfbanen. De luchthaven van Alicante ligt op 25 minuten rijden.

€750000

heeft u interesse in deze woning?

Neem direct contact met ons op! Vul het onderstaande formulier in en wij zijn u graag van dienst. Ook kunt u ons telefonisch bereiken via (0031)165 599993

Ontdek meer van ons aanbod

€281600

Een nieuwe ontwikkeling, een nieuwe kans voor U? Sol Natura Residential ligt in de stad San Miguel de Salinas, meer…

Grootte: 74 M2

3

2

€479000

Wilt u nagenoeg op het strand wonen? El Yado is een klein project bestaande uit 18 luxe woningen met 2…

Grootte: 254 M2

3

4

€320000

Een golfcourse nabij het strand waar treft u dat? Costa Serena is een nieuw woonconcept op La Serena Golf, Los Alcázares,…

Grootte: 101 M2

3

2

Bezoek onze evenementen

Bezoek ons op diverse evenementen, zoals tentoonstellingen, seminars en beurzen.

Kom langs en ontdek hoe wij u kunnen helpen uw droomwoning in Spanje te vinden!