Uw plekje in dit gezellige dorp?
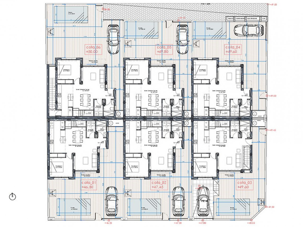
Doña Patro IX is een uniek project van 6 halfvrijstaande villa’s in moderne stijl in Benijófar, een charmant Spaans dorp met alle dagelijkse behoeften op loopafstand.
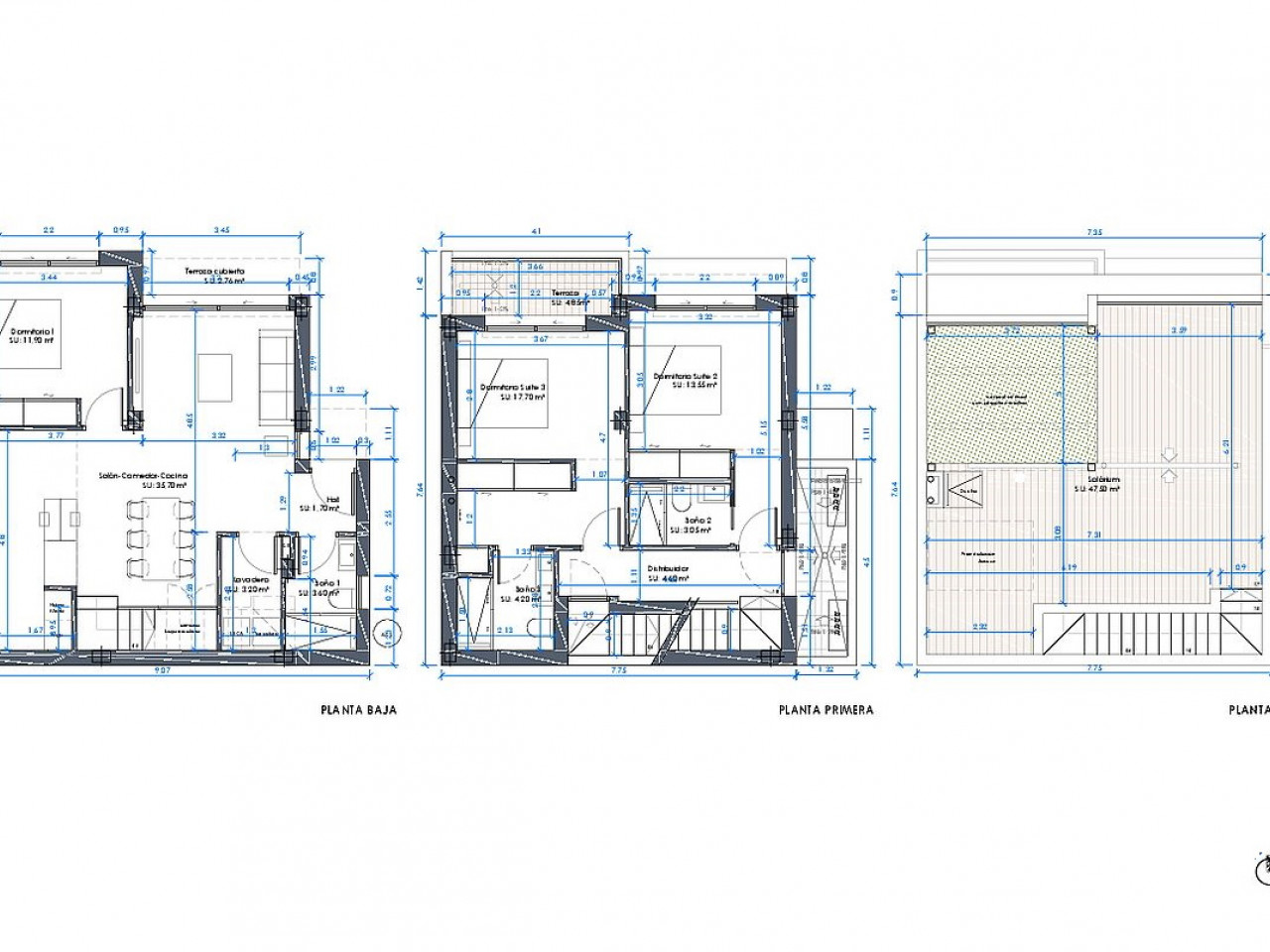
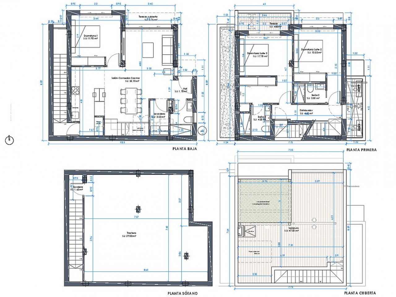
Elke villa heeft een uniek en functioneel ontwerp, verdeeld over twee verdiepingen plus een groot solarium op het dak, ideaal om te genieten van de zon en het panoramische uitzicht.
De begane grond bestaat uit een ruime woon-eetkamer met een open keuken die volledig is uitgerust met inbouwapparatuur, een wasruimte, een slaapkamer en een complete badkamer.
Op de eerste verdieping zijn er twee slaapkamers met en-suite badkamers; een van hen heeft een eigen terras, perfect voor ontspannende momenten.
De bovenste verdieping heeft een groot solarium van 47,5 m² met uitzicht op de omgeving.
Elk perceel varieert van 149 m² tot 190 m² en bevat een parkeerplaats, een privézwembad van 5 x 2,5 m en een gezellige tuin. Twee villa’s krijgen een kelder voor extra ruimte.
Het complex ‘Doña Patro IX’ in Benijófar ligt op loopafstand van alle plaatselijke voorzieningen. Het fantastische strand van Guardamar ligt op slechts 15 minuten rijden, samen met verschillende golfbanen zoals Vistabella Golf, La Finca Golf en La Marquesa Golf. De internationale luchthaven van Alicante ligt op 45 km afstand.








